| Συνδεθείτε στην Υπηρεσία Νομοσκόπιο | | | | | Νέοι χρήστες | | Εάν είστε νέος χρήστης, θα πρέπει να δημιουργήσετε ένα ΔΩΡΕΑΝ λογαριασμό προκειμένου να φύγει το παράθυρο αυτό και να αποκτήσετε πλήρη πρόσβαση στην υπηρεσία Νομοσκόπιο. | | Δημιουργία νέου λογαριασμού | | |
1. Το εδάφιο β' της παραγράφου 9 του άρθρου 82 του νόμου 3057/2002 αντικαθίσταται ως εξής:
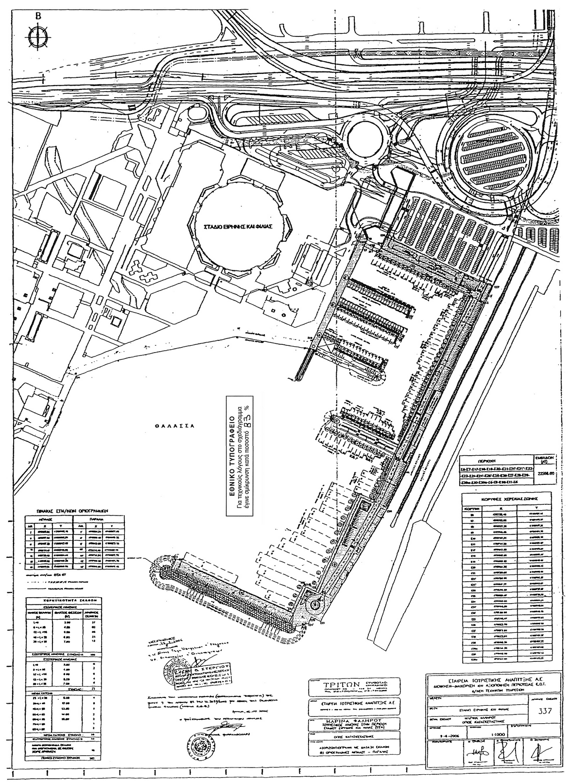
{β. Για τη μεταολυμπιακή χρήση του ως άνω τουριστικού λιμένα εγκρίνεται νέο τοπογραφικό διάγραμμα (Αριθμός Σχεδίου 337, κλίμακας 1:1.000) της Εταιρείας Τουριστικής Ανάπτυξης Ανώνυμη Εταιρεία, όπως αυτό θεωρήθηκε από τον Προϊστάμενο του Οργανισμού Ρυθμιστικού Σχεδίου Αθήνας και την Τεχνική Υπηρεσία του Υπουργείου Οικονομίας και Οικονομικών, στο οποίο περιγράφεται με τα στοιχεία Σ6-Σ7-Σ17-Σ18-Σ19-Σ20-Σ21-Σ21-Σ21-Σ22-Σ23-Σ24-Σ24'-Σ25'-Σ25-Σ26-Σ27-Σ28-Σ29-Σ29)α-Σ30-Σ30)α-Σ8-Σ9-Σ10-Σ11-Σ6 η χερσαία ζώνη του τουριστικού λιμένα και όπου αποτυπώνεται η θέση και διάταξη όλων των κατασκευών της χερσαίας και θαλάσσιας ζώνης αυτού και καθορίζονται νέες οριογραμμές αιγιαλού και παραλίας. Αντίτυπο του ως άνω τοπογραφικού διαγράμματος σε φωτοσμίκρυνση δημοσιεύεται με το νόμο αυτόν στην Εφημερίδα της Κυβερνήσεως.

Τα κτιριακά και λιμενικά έργα εντός της χερσαίας και θαλάσσιας ζώνης, αντιστοίχως, του τουριστικού λιμένα, όπως εμφαίνονται στο ανωτέρω τοπογραφικό διάγραμμα, λογίζονται στο σύνολό τους νομίμως κατασκευασθέντα.
Η άδεια λειτουργίας του τουριστικού λιμένα θα εκδίδεται σύμφωνα με τα οριζόμενα στο άρθρο 31 παράγραφος 8 του νόμου 2160/1993, επί του ως άνω διαγράμματος.}
2. Στο εδάφιο γ' περίπτωση α' της παραγράφου 9 του άρθρου 82 του νόμου 3057/2002 προστίθεται και η χρήση γης: Ελικοδρόμιο.
3. Το εδάφιο δ' της παραγράφου 9 του άρθρου 82 του νόμου 3057/2002 αντικαθίσταται ως εξής:
{δ. Μετά τη δημοσίευση του παρόντος νόμου, η αναβάθμιση, η επέκταση και ο εκσυγχρονισμός των υφιστάμενων κτιριακών εγκαταστάσεων επιτρέπεται σύμφωνα με τα ισχύοντα στην κείμενη νομοθεσία περί τουριστικών λιμένων, στο πλαίσιο των οριζομένων στην παράγραφο 9)γ του παρόντος άρθρου. Η επέκταση και ο εκσυγχρονισμός των υφιστάμενων λιμενικών εγκαταστάσεων επιτρέπεται επίσης σύμφωνα με τα ισχύοντα στην κείμενη νομοθεσία περί τουριστικών λιμένων.}
4. Το εδάφιο ε' της παραγράφου 9 του άρθρου 82 του νόμου 3057/2002 μετονομάζεται σε εδάφιο στ' και τροποποιείται ως εξής:
{στ. Από την έναρξη ισχύος του νόμου αυτού ανακαλούνται αυτοδικαίως η 151/1996 απόφαση [Α] του Περιφερειακού Διευθυντή Πειραιά Παραχώρηση κατά χρήση αιγιαλού - παραλίας στην περιοχή του Σταδίου Ειρήνης και Φιλίας στη Γενική Διεύθυνση Τελωνείων και ΕΦΚ Υπουργείου Οικονομικών και η ΤΥΔ/Φ040/577/3496/06-10-1995 απόφαση [Α] του Γενικού Γραμματέα Αθλητισμού Οριστική Παραχώρηση κατά χρήση έκτασης ζώνης αιγιαλού και παραλίας του χώρου του Σταδίου Ειρήνης και Φιλίας προς τη Γενική Γραμματεία Αθλητισμού, για τα τμήματα της ζώνης αιγιαλού και παραλίας που θα αποτελούν τη χερσαία ζώνη του τουριστικού λιμένα, όπως καθορίζονται στο πιο πάνω τοπογραφικό διάγραμμα, καθώς και οποιαδήποτε άλλη πράξη παραχώρησης χρήσης αιγιαλού και παραλίας στην πιο πάνω έκταση, οι δε σχετικές εκτάσεις και τα υφιστάμενα επ' αυτών κτίσματα παραχωρούνται για εκμετάλλευση, για τις χρήσεις που αναφέρονται στην περίπτωση 9)γ, σύμφωνα με τα οριζόμενα στην περίπτωση 9)ε του παρόντος. Η Εταιρεία Τουριστικής Ανάπτυξης Ανώνυμη Εταιρεία (πρώην Ελληνικά Τουριστικά Ακίνητα Ανώνυμη Εταιρεία) θα καταβάλει στο Δημόσιο την αξία των εγκαταστάσεων που κατασκευάστηκαν από το Υπουργείο Οικονομίας και Οικονομικών στην πιο πάνω έκταση.
Με απόφαση του Υπουργού Οικονομίας και Οικονομικών καθορίζονται η αξία των εγκαταστάσεων αυτών, η διαδικασία, ο τρόπος καταβολής του ανωτέρω ποσού και κάθε άλλη σχετική λεπτομέρεια.
Παραχωρούνται κατά χρήση στο Νομικά Πρόσωπα Ιδιωτικού Δικαίου Στάδιο Ειρήνης και Φιλίας:
(α) εδαφική έκταση στο Φαληρικό Δέλτα, εμβαδού 22.000 m2, που απεικονίζεται υπό τα στοιχεία α, β, γ, δ, ε, α στο συνοδεύον την παρούσα ρύθμιση υπ' αριθμόν 270Α/2005 τοπογραφικό διάγραμμα της Εταιρείας Τουριστικής Ανάπτυξης Ανώνυμη Εταιρεία κλίμακας 1:2.000, θεωρημένο από τον Ελληνικό Οργανισμό Τουρισμού, του οποίου αντίτυπο σε φωτοσμίκρυνση δημοσιεύεται με το νόμο αυτόν στην Εφημερίδα της Κυβερνήσεως και

(β) εδαφική έκταση στο Μικρολίμανο του Νομού Πειραιώς συνολικού εμβαδού 9.114 m2, ήτοι εκτάσεις υπ' αριθμόν 1 εμβαδού 3.351 m2 και υπ' αριθμόν 2 εμβαδού 5.763 m2 που απεικονίζονται υπό τα στοιχεία α, β, γ, δ, α η πρώτη και υπό τα στοιχεία β, ε, ζ, η, θ, γ, β η δεύτερη στο συνοδεύον την παρούσα ρύθμιση υπ' αριθμόν 339/2006 τοπογραφικό διάγραμμα της Εταιρείας Τουριστικής Ανάπτυξης Ανώνυμη Εταιρεία κλίμακας 1:500, θεωρημένο από τον Ελληνικό Οργανισμό Τουρισμού, του οποίου αντίτυπο σε φωτοσμίκρυνση δημοσιεύεται με το νόμο αυτόν στην Εφημερίδα της Κυβερνήσεως. Η διοίκηση και διαχείριση των ανωτέρω εκτάσεων είχε ανατεθεί στην Εταιρεία Τουριστικής Ανάπτυξης Ανώνυμη Εταιρεία δυνάμει της υπ' αριθμόν [Π] 166/1968 πράξη υπουργικού συμβουλίου σε συνδυασμό με τις παραγράφους 1 και 3 του άρθρου 1 της Κ' Συντακτικής Πράξης και των άρθρων 12 έως 23 του νόμου 2636/1998, όπως τροποποιήθηκε από τα άρθρα 9 και 10 του νόμου 2837/2000 και από το άρθρο 5 του νόμου 3270/2004.

Οι κατά το προηγούμενο εδάφιο παραχωρήσεις κατά χρήση από την Εταιρεία Τουριστικής Ανάπτυξης Ανώνυμη Εταιρεία στο Νομικά Πρόσωπα Ιδιωτικού Δικαίου Στάδιο Ειρήνης και Φιλίας γίνονται για όσο χρόνο η πρώτη έχει τη διοίκηση και διαχείριση αυτών και αποτελούν τη συνολική αποζημίωση της Εταιρείας Τουριστικής Ανάπτυξης Ανώνυμη Εταιρεία προς το Νομικά Πρόσωπα Ιδιωτικού Δικαίου Στάδιο Ειρήνης και Φιλίας αναδρομικά και για όσο χρόνο η πρώτη έχει τη διοίκηση, διαχείριση και εκμετάλλευση του τουριστικού λιμένα του Σταδίου Ειρήνης και Φιλίας.}
5. Το εδάφιο στ' της παραγράφου 9 του άρθρου 82 του νόμου 3057/2002 μετονομάζεται σε εδάφιο ε' και τροποποιείται ως εξής:
{ε. Η διοίκηση, η διαχείριση και η εκμετάλλευση του πιο πάνω τουριστικού λιμένα ανατίθεται στην Εταιρεία Τουριστικής Ανάπτυξης Ανώνυμη Εταιρεία (πρώην Ελληνικά Τουριστικά Ακίνητα Ανώνυμη Εταιρεία), στην οποία παραχωρείται το δικαίωμα χρήσης του χώρου και για την εκτέλεση των σχετικών έργων. Η λειτουργία του τουριστικού λιμένα διέπεται από τις κείμενες διατάξεις περί τουριστικών λιμένων.}