-1) {
var s = source.indexOf("", e);
scripts.push(source.substring(s_e+1, e));
source = source.substring(0, s) + source.substring(e_e+1);
}
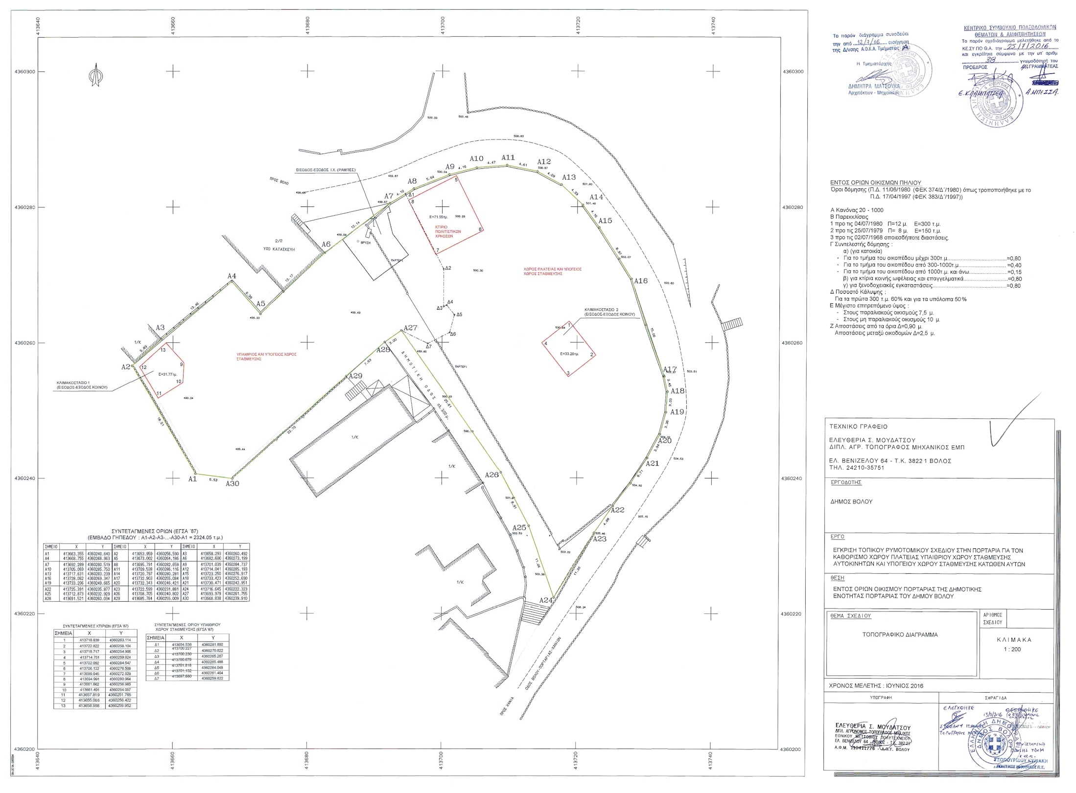
for(var i=0; i Εγκρίνεται τοπικό ρυμοτομικό σχέδιο στην εντός ορίων περιοχή του οικισμού Πορταριά της Δημοτικής Ενότητας Βόλου του Δήμου Βόλου (νομού Μαγνησίας), που έχει χαρακτηρισθεί ως παραδοσιακός με το από 11-06-1980 προεδρικό διάταγμα (ΦΕΚ 374/Δ/1980), όπως ισχύει, για τον καθορισμό χώρου πλατείας, υπαίθριου χώρου στάθμευσης αυτοκινήτων, υπόγειου χώρου στάθμευσης αυτοκινήτων κάτωθεν αυτών, όπως ο χώρος αυτός φαίνεται περικλειόμενος με συνεχή πράσινη γραμμή και με στοιχεία Α1, Α2, A3, .... Α30, Α1, στο σχετικό πρωτότυπο διάγραμμα σε κλίμακα 1:200, που θεωρήθηκε από τον Προϊστάμενο της Διεύθυνσης Τοπογραφικών Εφαρμογών και με την υπ' αριθμόν 184/2018 πράξη του και που αντίτυπό του σε φωτοσμίκρυνση συνδημοσιεύεται με το παρόν διάταγμα. ";
if(window.XMLHttpRequest){
try{xmlhttp = new XMLHttpRequest();}catch(e){
xmlhttp = false;}}
else if(window.ActiveXObject){
try{xmlhttp=new ActiveXObject("Msxml2.XMLHTTP");}catch(e){
try{xmlhttp=new ActiveXObject("Microsoft.XMLHTTP");}catch(e){
xmlhttp = false;}}}
if (xmlhttp) {
xmlhttp.onreadystatechange=function(){
if(xmlhttp.readyState==4){
if(xmlhttp.status==200){
var mystr=xmlhttp.responseText;
var mspanner=document.getElementById(target);
mspanner.innerHTML="";
var newdiv = document.createElement('div');
newdiv.innerHTML = parseScript(mystr);
mspanner.appendChild(newdiv);
}}}
}
var myurl=url;
if (params.length!=0) {
myurl=myurl+"?"+params;
}
xmlhttp.open("POST",myurl,true);
xmlhttp.send(null);
}

Συνδεθείτε στην Υπηρεσία Νομοσκόπιο
Νέοι χρήστες Εάν είστε νέος χρήστης, θα πρέπει να δημιουργήσετε ένα ΔΩΡΕΑΝ λογαριασμό προκειμένου να φύγει το παράθυρο αυτό και να αποκτήσετε πλήρη πρόσβαση στην υπηρεσία Νομοσκόπιο. Δημιουργία νέου λογαριασμού 