| Συνδεθείτε στην Υπηρεσία Νομοσκόπιο | | | | | Νέοι χρήστες | | Εάν είστε νέος χρήστης, θα πρέπει να δημιουργήσετε ένα ΔΩΡΕΑΝ λογαριασμό προκειμένου να φύγει το παράθυρο αυτό και να αποκτήσετε πλήρη πρόσβαση στην υπηρεσία Νομοσκόπιο. | | Δημιουργία νέου λογαριασμού | | |
Απόφαση 63234/2012: Έγκριση Τεύχους Τεχνικών Οδηγιών Εφαρμογής του νόμου 4067/2012 (Νέος Οικοδομικός Κανονισμός), (ΦΕΚ //2012), 19-12-2012.
Ο Αναπληρωτής Υπουργός Περιβάλλοντος, Ενέργειας και Κλιματικής Αλλαγής
Έχοντας υπόψη:
1. Το προεδρικό διάταγμα 86/2012 Διορισμός Υπουργών, Αναπληρωτών Υπουργών και Υφυπουργών (ΦΕΚ 141/Α/2012).
2. Τις διατάξεις του προεδρικού διατάγματος 63/2005 Κωδικοποίηση της νομοθεσίας για την κυβέρνηση και τα κυβερνητικά όργανα (ΦΕΚ 98/Α/2005).
3. Τις διατάξεις της Υ46/2012 απόφασης του Πρωθυπουργού Καθορισμός αρμοδιοτήτων του Αναπληρωτή Υπουργού Περιβάλλοντος, Ενέργειας και Κλιματικής Αλλαγής Σταύρου Καλαφάτη (ΦΕΚ 2101/Β/2012).
4. Τον νόμο 4067/2012 Νέος Οικοδομικός Κανονισμός (ΦΕΚ 79/Α/2012) και ειδικότερα το άρθρο 28 παράγραφος 4 αυτού.
5. Την με αριθμό πρωτοκόλλου 1680/2012 Απόφαση του Γενικού Γραμματέα Χωροταξίας & Αστικού Περιβάλλοντος Σύσταση Επιτροπής επεξεργασίας Τεχνικών Οδηγιών Εφαρμογής του Νέου Οικοδομικού Κανονισμού (νόμος 4067/2012) και αντικείμενο εργασιών αυτής.
6. Την από 28-11-2012 Αναφορά του Προέδρου της Επιτροπής επεξεργασίας Τεχνικών Οδηγιών Εφαρμογής του Νέου Οικοδομικού Κανονισμού (νόμος 4067/2012) με αριθμό πρωτοκόλλου Γραφείου Αναπληρωτή Υπουργού Περιβάλλοντος, Ενέργειας και Κλιματικής Αλλαγής 2989/2012 και Γραφείου Γενικού Γραμματέα Χωροταξίας & Αστικού Περιβάλλοντος 2591/28-11-2012.
7. Την υπ' αριθμόν πρωτοκόλλου 2621/2012 επιστολή του Γενικού Γραμματέα Χωροταξίας & Αστικού Περιβάλλοντος προς το Τεχνικό Επιμελητήριο Ελλάδος.
8. Την υπ' αριθμόν 40925/2012 επιστολή του Τεχνικού Επιμελητηρίου Ελλάδος προς το Γραφείο Γενικού Γραμματέα Χωροταξίας & Αστικού Περιβάλλοντος.
9. Το γεγονός ότι από τις διατάξεις της απόφασης αυτής δεν προκαλείται δαπάνη σε βάρος του κρατικού προϋπολογισμού, αποφασίζουμε:
Εγκρίνουμε Τεύχος Τεχνικών Οδηγιών Εφαρμογής του Νέου Οικοδομικού Κανονισμού (νόμος 4067/2012) όπως αυτό προσαρτάται στην παρούσα απόφαση και αποτελεί αναπόσπαστο μέρος αυτής.
Τεύχος Τεχνικών Οδηγιών Εφαρμογής για την εφαρμογή του νόμου 4067/2012 (Νέος Οικοδομικός Κανονισμός)
Τεχνικές Οδηγίες κατ' άρθρο
Άρθρο 2: Ορισμοί
παράγραφος 1 (σε συνδυασμό με το άρθρο 16)
Όταν το αίθριο έχει μια πλευρά του σε επαφή με το όριο του οικοπέδου, τότε μπορεί είτε να κατασκευαστεί με τυφλό τοίχο επί του ορίου (με ή χωρίς φέροντα στοιχεία), είτε χωρίς τοίχο. Στην περίπτωση κατασκευής τυφλού τοίχου, τότε το αίθριο θεωρείται ότι εμπίπτει εντός του σώματος του κτιρίου και κατά συνέπεια ο υπ' όψη τοίχος προσμετράται στο συντελεστή δόμησης στους ορόφους του κτιρίου που θεωρούνται ότι είναι σε επαφή με το κοινό όριο των οικοπέδων, ενώ παράλληλα θα πρέπει υποχρεωτικά να πληρούνται οι προϋποθέσεις για την κατασκευή του κτιρίου σε επαφή με το κοινό όριο στη θέση αυτή.
Στην περίπτωση αίθριου στις όψεις του οποίου προβλέπονται στοιχεία του άρθρου 16, τότε επιβάλλεται καθαρή απόσταση Δ μεταξύ των κατακόρυφων ή οριζόντιων λειτουργικών και διακοσμητικών στοιχείων που βρίσκονται κατ' επέκταση της επιφάνειας των όψεων του κτιρίου. Τα στοιχεία αυτά έχουν τη μέγιστη διάσταση που ορίζεται στο άρθρο 16.


παράγραφος 5
Ο ανοιχτός εξώστης βρίσκεται κατ' επέκταση του κτιρίου, όπως αυτό ορίζεται από τον φέροντα οργανισμό και τα στοιχεία πλήρωσής του.
Στο επίπεδο του ισογείου και κατ' επέκταση του δαπέδου του, όταν ο ανοιχτός εξώστης (βεράντα ισογείου) είναι μπαζωμένος, θεωρείται ότι αποτελεί διαμόρφωση του περιβάλλοντος χώρου και δεν προσμετράται στο σύνολο των επιτρεπόμενων εξωστών.
παράγραφος 6 (σε συνδυασμό με την παράγραφο δ άρθρου 12, παράγραφο 2)γ άρθρου 17 και άρθρο 14)
Οι κλειστές πλευρές του ανοικτού ημιυπαίθριου χώρου μπορεί να είναι στοιχεία του φέροντα οργανισμού του κτιρίου ή στοιχεία πλήρωσης του φέροντα οργανισμού συμπεριλαμβανομένων των ανοιγμάτων (κουφώματα) των στοιχείων πλήρωσης.
Οι ανοικτοί ημιυπαίθριοι χώροι έχουν ανοιχτή πλευρά προς κοινόχρηστο χώρο ή προς ακάλυπτους χώρους, έχουν ανοιχτή πλευρά στο πρόσωπο του οικοπέδου, ή σε αίθριο, ή στον πίσω ακάλυπτο που έχει απόσταση μεγαλύτερη ή ίση του Δ από το όριο του οικοπέδου, ή στον πλάγιο ακάλυπτο που έχει απόσταση μεγαλύτερη ή ίση του δ από το όριο του οικοπέδου, ή στον ακάλυπτο που αφήνεται ως υπόλοιπο των Δ ή δ μετά την δημιουργία κτιρίου έως 9 m.

Ο ανοιχτός ημιυπαίθριος χώρος δεν μπορεί να έχει ανοιχτή πλευρά σε εσωτερικό κατακόρυφο άνοιγμα του κτιρίου που έχει διάσταση μικρότερη του Δ, ή σε εσοχή του περιγράμματος του κτιρίου που έχει διάσταση απέναντί του μικρότερη του Δ (όπως φαίνεται στο παραπάνω σχήμα).
παράγραφος 18
Λαμβάνοντας συνδυαστικά υπ' όψη και τα αναφερόμενα στον Κώδικα Οδικής Κυκλοφορίας (νόμος [Ν] 2696/1999 (ΦΕΚ 57/Α/1999)), ως δρόμος ήπιας κυκλοφορίας νοείται η οδός με προτεραιότητα στην κίνηση των πεζών, στην οποία με κατάλληλες διαμορφώσεις εξασφαλίζεται, πέραν των αναφερόμενων στη χρήση πεζοδρόμου της παραγράφου 59, η διέλευση οχημάτων με χαμηλή ταχύτητα ή και η στάθμευση. Οι δρόμοι ήπιας κυκλοφορίας διαμορφώνονται κυρίως σε περιοχές με επικρατούσα χρήση την κατοικία.
παράγραφος 28 (σε συνδυασμό με το άρθρο 11 παράγραφος 6)ι)δ)
Ο ανοιχτός χώρος του εσωτερικού εξώστη έχει ελάχιστο ύψος ανάλογα με τη χρήση του και δεν προσμετρείται στο συντελεστή δόμησης έως το 10% της επιτρεπόμενης δόμησης του κτιρίου. Δεν αποτελεί ανεξάρτητη ιδιοκτησία και δεν προσεγγίζεται από εξωτερική κλίμακα. Αποτελεί λειτουργικό παράρτημα της υποκείμενης επιφάνειας και σε περίπτωση διαφορετικών ιδιοκτησιών στον ίδιο όροφο, κάθε πατάρι τοποθετείται μέσα στα όρια της υποκείμενης ανεξάρτητης ιδιοκτησίας και δεν εκτείνεται στην όμορη. Δεν αποτελεί όροφο και δεν υποκαθιστά τη λειτουργία των χώρων κύριας χρήσης που είναι απαραίτητοι για τη λειτουργία του υποκείμενου ορόφου. Τυχόν κλειστά τμήματα του εσωτερικού εξώστη με βοηθητική χρήση (όπως π.χ. WC) προσμετρούνται στον συντελεστή δόμησης χωρίς να θεωρούνται όροφος Στο μέγιστο επιτρεπόμενο εμβαδόν του εσωτερικού εξώστη συνυπολογίζεται και η κλίμακα ανόδου σε αυτόν.
παράγραφος 41
Κορυφογραμμή καλείται η νοητή γραμμή, η οποία διαχωρίζει τα νερά της βροχής και ενώνει διαδοχικές κορυφές (ορέων, βουνών, λόφων) μέσω αυχένων, η οποία δεν διακόπτεται από βαθιά γραμμή ή ποταμό. Η τοπογραφική απόδοση μίας κορυφογραμμής φαίνεται στο διπλανό σχήμα.
Ορισμοί:
1. Αυχένας καλείται το χαμηλότερο σημείο μιας κορυφογραμμής, το οποίο περιλαμβάνεται ανάμεσα σε δύο κορυφές.
2. Όρος καλείται κάθε εξέχουσα εδαφική μορφή της οποίας το υψόμετρο υπερβαίνει τα 1000 m από την μέση στάθμη της επιφάνειας της θάλασσας.
3. Βουνό καλείται κάθε εξέχουσα εδαφική μορφή της οποίας το υψόμετρο περιλαμβάνεται ανάμεσα στα 300 και 1000 m από την μέση στάθμη της επιφάνειας της θάλασσας.
4. Λόφος καλείται μια εξέχουσα εδαφική μορφή η οποία έχει υψόμετρο μέχρι 300 μέτρα από την μέση στάθμη της επιφάνειας της θάλασσας.

παράγραφος 42
Διευκρινίζεται ότι οι διαστάσεις του κτιρίου καθορίζονται από τον φέροντα οργανισμό αυτού και τους εξωτερικούς τοίχους πλήρωσής του. Στις ανωτέρω διαστάσεις δεν συμπεριλαμβάνονται τα υλικά επένδυσης του κτιρίου (σοβάδες, διακοσμητική λιθοδομή, μεταλλικές και ξύλινες επενδύσεις, μαρμαρόπλακες κλπ μεγίστου πάχους έως 15 cm) καθώς και η άνω των 6 cm επιφάνεια εξωτερικής θερμομόνωσης.
παράγραφος 59
Οι πεζόδρομοι, κατά την συγκεκριμένη διάταξη, προορίζονται αποκλειστικά κατ' αρχάς για την εξυπηρέτηση των πεζών. Δευτερευόντως, λαμβάνοντας συνδυαστικά υπ' όψη και τα αναφερόμενα στον Κώδικα Οδικής Κυκλοφορίας (νόμος [Ν] 2696/1999 (ΦΕΚ 57/Α/1999)), διευκρινίζεται ότι πέραν των πεζών έχουν κατ' εξαίρεση πρόσβαση οχήματα έκτακτης ανάγκης (όπως πυροσβεστική, ασθενοφόρα), οχήματα τροφοδοσίας και οχήματα που διαθέτουν χώρο στάθμευσης σε ακίνητα με πρόσωπο αποκλειστικά στον πεζόδρομο.
παράγραφος 78
Ως φυσικό έδαφος θεωρείται το υφιστάμενο έδαφος στο οποίο δεν έχουν γίνει πρόσφατες ανθρωπογενείς επεμβάσεις και η διαπίστωση αυτή προκύπτει μακροσκοπικά με την κοινή εμπειρία και πρακτική (30171/1995 έγγραφο Διεύθυνσης Οικοδομικών και Κτιριοδομικών Κανονισμών).
παράγραφος 81 (σε συνδυασμό με το άρθρο 11 παράγραφος 6)ι)ε & με το άρθρο 19 παράγραφος 2)ζ)
Ο χώρος της σοφίτας μπορεί να είναι ανοιχτός ή κλειστός. Έχει μέσο ελεύθερο ύψος κάτω από την επιφάνεια της στέγης μικρότερο του 2.20 m και συνολικό εμβαδόν έως και το μισό του χώρου της υποκείμενης κάτοψης. Δεν αποτελεί ανεξάρτητη ιδιοκτησία, δηλαδή δεν προσεγγίζεται από εξωτερική κλίμακα. Αποτελεί λειτουργικό παράρτημα της υποκείμενης επιφάνειας και σε περίπτωση διαφορετικών ιδιοκτησιών στον ίδιο όροφο, κάθε σοφίτα τοποθετείται μέσα στα όρια της υποκείμενης ανεξάρτητης ιδιοκτησίας και δεν εκτείνεται στην όμορη.
Δεν υποκαθιστά τη λειτουργία των χώρων κύριας ή βοηθητικής χρήσης που είναι απαραίτητοι για τη λειτουργία της αυτοτελούς ανεξάρτητης ιδιοκτησίας του κτιρίου στην οποία ανήκει. Επιτρέπονται ανοίγματα στη στέγη που ακολουθούν τη στερεομετρία της, όσο και ανοίγματα στους τυχόν τοίχους που συμμετέχουν σε αυτήν, για τον φωτισμό και αερισμό του χώρου.
παράγραφος 86
Αν συνδέσουμε τα υψηλότερα σημεία που περιβάλλουν μια λεκάνη απορροής, προκύπτει μια νοητή γραμμή που καθορίζει τα όρια της λεκάνης. Υδροκρίτης ορίζεται η νοητή γραμμή που συνδέει τα υψηλότερα σημεία της επιφάνειας και διαχωρίζει δυο υδρολογικές λεκάνες απορροής.
| • | Ο υδροκρίτης διέρχεται από τις κορυφές των τοπικών εξάρσεων που περικλείουν τον κλάδο ή τους κλάδους του υδρογραφικού δικτύου των οποίων την λεκάνη απορροής οριοθετούμε |
| • | Ο υδροκρίτης τέμνει σχεδόν κάθετα τις ισοϋψείς καμπύλες και δεν κινείται ποτέ παράλληλα προς αυτές. |
| • | Ο υδροκρίτης δεν τέμνει ποτέ τους κλάδους του υδρογραφικού δικτύου. Συμπερασματικά λοιπόν η κορυφογραμμή και ο υδροκρίτης, είναι διαφορετικές έννοιες και δεν ταυτίζονται μεταξύ τους, διότι υπάρχουν πληθώρα υδροκριτών, που δεν διέρχονται από τη μοναδική κορυφογραμμή μιας περιοχής. Υπάρχει μία και μόνη περίπτωση, που τμήμα του μοναδικού υδροκρίτη, ταυτίζεται με την κορυφογραμμή και είναι εκείνος, ο οποίος ορίζει τη μέγιστη λεκάνη απορροής. Δηλαδή, είναι εκείνος που διέρχεται από τις βουνοκορυφές και ορίζει το όριο της μέγιστης λεκάνης απορροής, με βάση τον τρόπο χάραξης του υδροκρίτη και της κορυφογραμμής. (Τεχνική Υδρολογία, έκδοση 3 Αθήνα 1999 των Δ. Κουτσογιάννη & Θ. Ξανθόπουλου, ΕΜΠ - Τομέας Υδατικών πόρων). |

παράγραφος 87
Το ύψος της οροφής του υπογείου ορόφου από την οριστική στάθμη του εδάφους ορίζεται γενικά. Το ελεύθερο ύψος του υπογείου προβλέπεται ανάλογα με τη χρήση του και τις ανάγκες που απορρέουν από αυτή. Κατά περιπτώσεις, κατισχύουν τα ειδικά προεδρικά διατάγματα για την εκτός σχεδίου δόμηση ή τη δόμηση σε οικισμούς, με ύψος οροφής του υπογείου ορόφου από το πέριξ έδαφος όπως ορίζεται σε αυτά.
παράγραφος 91 (σε συνδυασμό με το Άρθρο 2 παράγραφος 90 & με το άρθρο 19 παράγραφος 2)ζ)
Η στέγη μπορεί να έχει συνολικό ύψος από το σημείο έδρασής της έως και δύο μέτρα πάνω από το μέγιστο επιτρεπόμενο ύψος της περιοχής, εκτός αν ορίζεται διαφορετικά από ειδικά προεδρικά διατάγματα. Όταν το ύψος του κτιρίου είναι μικρότερο του μέγιστου επιτρεπόμενου ύψους της περιοχής τότε το ύψος της στέγης μπορεί να είναι μεγαλύτερο των δύο μέτρων με την προϋπόθεση ότι το συνολικό ύψος κτιρίου και στέγης δεν υπερβαίνει το μέγιστο ύψος της περιοχής προσαυξημένο κατά δύο μέτρα. Τα ανωτέρω ισχύουν με την επιφύλαξη ειδικών όρων και περιορισμών που επιβάλλουν ειδικοί όροι δόμησης της εκάστοτε περιοχής. Όταν το κτίριο κατασκευάζεται με μονόρριχτη στέγη, ως ύψος κτιρίου θεωρείται η κατακόρυφη απόσταση από το σημείο τομής της όψης του κτιρίου με το οριστικά διαμορφωμένο έδαφος έως το ανώτατο σημείο της στέγης στη θέση αυτή μείον 2.00 m, εκτός αν ορίζεται διαφορετικό μέγιστο ύψος στέγης από τους όρους δόμησης της περιοχής, οπότε και αφαιρείται το οριζόμενο ύψος. Τα ανωτέρω δεν ισχύουν στην περίπτωση που το μέγιστο ύψος του κτιρίου δίδεται από τους όρους


παράγραφος 95 & παράγραφος 96
Οι χώροι κύριας χρήσης των κτιρίων είναι όσοι προορίζονται για την παραμονή σε κανονικές συνθήκες λειτουργίας, χρηστών για μεγάλο χρονικό διάστημα. Οι χώροι βοηθητικής χρήσης εξυπηρετούν την κύρια χρήση και προορίζονται για την παραμονή σε κανονικές συνθήκες λειτουργίας των χρηστών για μικρό χρονικό διάστημα. Το ελεύθερο ύψος των χώρων βοηθητικής χρήσης καθορίζεται από τις διατάξεις του Κτιριοδομικού Κανονισμού τουλάχιστον 2,20 m.
Άρθρο 3: Ορισμοί συντελεστών και μεγεθών
Διευκρινίζεται ότι στο μέγεθος Η δεν συμπεριλαμβάνεται το ύψος της στέγης.
Για τον υπολογισμό της απόστασης Δ ή δ μπορεί να λαμβάνεται ως μέγεθος Η το ύψος του κτιρίου στο οποίο προβλέπεται να εξαντληθεί μελλοντικά ο συντελεστή δόμησης. Ο τρόπος εξάντλησης του συντελεστή δόμησης απεικονίζεται με διακεκομμένη γραμμή στην σχηματική τομή του διαγράμματος δόμησης το οποίο περιλαμβάνει και Υπεύθυνη Δήλωση του ιδιοκτήτη με τη σύμφωνη γνώμη του.
Άρθρο 4: Άδειες Δόμησης
παράγραφοι 1)στ & 1)ζ (σε συνδυασμό με το άρθρο 5 παράγραφοι 1 & 2 & με το άρθρο 29 παράγραφος 3)
Οι παράγραφοι 1)στ και 1)ζ του άρθρου 4 αποτελούν υποκατηγορίες της ευρύτερης κατηγορίας έκδοσης άδειας αλλαγής χρήσης, αλλά και την πλέον συνήθη.
Με το νόμο 4030/2011, όπως τροποποιήθηκε με το νόμο 4067/2012, ενημέρωση φακέλου άδειας δόμησης γίνεται ανεξάρτητα του χρόνου ισχύος της, δηλαδή για όσο χρόνο υφίσταται το κτίριο. Η αλλαγή μελετών που δεν τροποποιούν το διάγραμμα δόμησης της άδειας δόμησης γίνεται με ενημέρωση του φακέλου της άδειας, οποιαδήποτε χρονική στιγμή. Οι εργασίες εσωτερικών διαρρυθμίσεων που δεν θίγουν τον φέροντα οργανισμό του κτιρίου και δεν τροποποιούν τις εγκαταστάσεις αυτού, δεν απαιτούν την έκδοση άδειας δόμησης.
Βασικό κριτήριο για την αναγκαιότητα έκδοσης άδειας δόμησης για αλλαγή χρήσης είναι η αλλαγή των θέσεων στάθμευσης προς το δυσμενέστερο, επειδή τροποποιεί παλαιότερα διαγράμματα κάλυψης και διαγράμματα δόμησης, δεδομένου ότι ήταν και παραμένει απαραίτητο στοιχείο που αποτυπώνεται σε αυτά και ενδεχομένως διαφοροποιείται και ο περιβάλλων χώρος και ο υπολογισμός της φύτευσης και υπέρ της ασφάλειας.
Αιτία έκδοσης άδειας δόμησης, χωρίς αυτό να αποτελεί έννοια αλλαγής χρήσης χώρου, είναι και ενδεχόμενες αλλαγές στις όψεις εφόσον διαφοροποιούν το διάγραμμα δόμησης ή - με παλαιότερους τρόπους έκδοσης αδειών - τα εγκεκριμένα σχέδια όψεων.
Υπέρ της ασφάλειας του κτιρίου και σε συνέχεια παλαιότερων τρόπων έκδοσης αδειών, στα κριτήρια για την αναγκαιότητα έκδοσης άδειας δόμησης για αλλαγή χρήσης κτιρίου συμπεριλαμβάνεται και η αλλαγή στη στατική μελέτη.
Διευκρινίζεται ότι η διαφοροποίηση της κατηγορίας χρήσης κατά τον κτιριοδομικό κανονισμό δεν αποτελεί πάντα λόγο έκδοσης άδειας αλλαγής χρήσης εφ' όσον δεν εμπίπτει στις περιπτώσεις 1)στ και 1)ζ του παρόντος άρθρου. Για παράδειγμα ένα εργαστήριο χαμηλής όχλησης που δεν απαιτεί για τη λειτουργία του ειδική έγκριση μπορεί να στεγάζεται σε χώρο καταστήματος χωρίς να είναι απαραίτητη η έκδοση άδειας αλλαγής χρήσης, παρά το γεγονός ότι κατά τον κτιριοδομικό κανονισμό ανήκουν σε διαφορετικές κατηγορίες.
παράγραφος 2
Έως την έκδοση της Υπουργικής Απόφασης που προβλέπεται στο τέλος της παραγράφου, για τον καθορισμό της διαδικασίας έκδοσης της έγκρισης εργασιών μικρής κλίμακας ισχύει το υπ' αριθμόν 1668/2012 έγγραφο του Γενικού Γραμματέα Χωροταξίας και Αστικού Περιβάλλοντος, σύμφωνα με το οποίο εξακολουθεί να εφαρμόζεται η υπ' αριθμόν 5219/2004 Υπουργική Απόφαση (ΦΕΚ 114/Δ/2004) όπως ισχύει. Διευκρινίζεται, ότι για όσες από τις εργασίες της ανωτέρω Υπουργικής Απόφασης προβλέπεται από την παράγραφο 3 του παρόντος η διαδικασία έγγραφης ενημέρωσης, τηρείται η εν λόγω διαδικασία.
παράγραφος 3
Για την εφαρμογή της διαδικασίας εκτέλεσης οικοδομικών εργασιών με απλή έγγραφη ενημέρωση της αρμόδιας Υπηρεσίας Δόμησης, υποβάλλεται από τον ιδιοκτήτη στην Υπηρεσία Δόμησης και το οικείο αστυνομικό τμήμα, προ 48 τουλάχιστον ωρών, το υπόδειγμα που συνοδεύει το παρόν. Καθίσταται σαφές ότι με την έγγραφη ενημέρωση συνυποβάλλονται προς την Υπηρεσία Δόμησης και οι τυχόν κατά περίπτωση απαιτούμενες εγκρίσεις άλλων φορέων (π.χ. Συμβούλιο Αρχιτεκτονικής, Αρχαιολογική υπηρεσία, δασαρχείο, κ.λ.π.), συναίνεση των συνιδιοκτητών της οικοδομής εφ' όσον οι κατασκευές βρίσκονται σε κοινόχρηστους χώρους (ακάλυπτοι χώροι του οικοπέδου) ή κοινόκτητα τμήματα του κτιρίου (όψεις, φ.ο., κ.λ.π.) και όσα ειδικότερα αναφέρονται παρακάτω. Η εκτέλεση εργασιών με την διαδικασία της έγγραφης ενημέρωσης της αρμόδιας Υπηρεσίας Δόμησης αφορά μόνον σε νομίμως υφιστάμενα κτίρια.
παράγραφος 3)η
Για τις κατασκευές του εδαφίου 3)η απαιτείται η προσκόμιση συναίνεσης των συνιδιοκτητών της οικοδομής εφόσον οι κατασκευές βρίσκονται σε κοινόχρηστους χώρους (ακάλυπτοι χώροι του οικοπέδου) ή κοινόκτητα τμήματα του κτιρίου (όψεις, φέρων οργανισμός κ.λ.π.).
Στην περίπτωση που από τις εν λόγω κατασκευές επηρεάζεται ο φέρων οργανισμός του κτιρίου, συνυποβάλλεται στην Υπηρεσία Δόμησης τεχνική έκθεση Μηχανικού στην οποία τεκμηριώνεται η μη επιβάρυνση τις στατικής επάρκειας του κτιρίου, διαφορετικά ακολουθείται η διαδικασία που προβλέπεται στην παράγραφο 1)στ του παρόντος άρθρου.
παράγραφος 3)θ (σε συνδυασμό με το άρθρου 17 παράγραφος 2)α)
Για την τοποθέτηση ασκεπούς δεξαμενής νερού ή πισίνας, η προβλεπόμενη δήλωση του αρμόδιου μηχανικού θα πρέπει να βεβαιώνει και την τήρηση του ποσοστού της υποχρεωτικής φύτευσης του άρθρου 17 και μετά την υλοποίηση της προβλεπόμενης εγκατάστασης.
παράγραφος 3)ι)γ
Για την κατασκευή φυτεμένων δωμάτων και φυτεμένων επιφανειών, τηρούνται τα προβλεπόμενα στο άρθρο 18 του νόμου σε συνδυασμό με την υπ' αριθμόν 911/2012 Υπουργική Απόφαση Όροι, προϋποθέσεις και διαδικασία κατασκευής φυτεμένων επιφανειών σε δώματα, στέγες και υπαίθριους χώρους κτιρίων (ΦΕΚ 14/Β/2012).
παράγραφος 3)ι)δ (σε συνδυασμό με το άρθρο 11 παράγραφος 6)κ & με το άρθρο 12 παράγραφος 4)γ)
α) Για την τοποθέτηση εξωτερικής θερμομόνωσης σε κτίρια προϋφιστάμενα της 04-07-1979, ακολουθείται η διαδικασία έγγραφης ενημέρωσης της αρμόδιας Υπηρεσίας Δόμησης και τηρούνται κατά τα λοιπά τα οριζόμενα στην υπουργική απόφαση 9854/2011 (ΦΕΚ 492/Β/2011).
β) Για κτίρια που ανεγέρθηκαν μετά την ανωτέρω ημερομηνία, για την τοποθέτηση εξωτερικής θερμομόνωσης ακολουθείται η διαδικασία της έγγραφης ενημέρωσης, συνοδευόμενη με τεκμηρίωση της αναγκαιότητας της επέμβασης βάσει των αναφερομένων στο άρθρο 1 της ανωτέρω υπουργικής απόφασης και με την προϋπόθεση ότι δεν γίνεται χρήση ικριωμάτων. Σε περίπτωση χρήσης ικριωμάτων, απαιτείται η έκδοση άδειας δόμησης κατά τα οριζόμενα στην παράγραφο 1)γ του παρόντος άρθρου, προσκομίζοντας ακριβή αντίγραφα από το πρωτότυπο του φακέλου οικοδομικής αδείας ή άδειας δόμησης, του τοπογραφικού διαγράμματος, του διαγράμματος δόμησης ή κάλυψης κατά περίπτωση και των λοιπών σχεδίων που θα μπορούσαν να είναι απαιτητά, πέραν των άλλων προβλεπομένων δικαιολογητικών
γ) Για την τοποθέτηση παθητικών ηλιακών συστημάτων ακολουθείται η διαδικασία της έγγραφης ενημέρωσης μόνον όταν δεν γίνεται χρήση ικριωμάτων.
παράγραφος 4
Πέραν των περιπτώσεων α, β & γ της παραγράφου 4, αναφέρεται συμπληρωματικά ότι για την κατασκευή πρόχειρων καταλυμάτων ζώων του άρθρου 2 παράγραφος 1)α του νόμου 4056/2012 (ΦΕΚ 52/Α/2012) δεν απαιτείται αδειοδότηση από τις Υπηρεσίες Δόμησης. Για τις υπόλοιπες περιπτώσεις των κτηνοτροφικών εγκαταστάσεων του άρθρου 2 του ανωτέρω νόμου τηρούνται όσα ειδικότερα αναφέρονται σε αυτό. Η ενημέρωση του Αστυνομικού Τμήματος για τις εργασίες που προβλέπονται στην παράγραφο αυτή γίνεται από τον ιδιοκτήτη με υποβολή αίτησης - γνωστοποίησης η οποία συνοδεύεται από την σχετική εντολή της Υπηρεσίας Δόμησης και τη δήλωση ανάληψης επίβλεψης από αρμόδιο μηχανικό. Η ίδια διαδικασία γνωστοποίησης γίνεται και προς την Υπηρεσία Δόμησης, για διαπίστωση της εμπρόθεσμης υλοποίησης των εντολών της υπηρεσίας.
παράγραφος 4)γ
Το εδάφιο αφορά σε κατεδάφιση αυθαίρετης κατασκευής ή αποκατάσταση της νομιμότητας σε οικοδομή σύμφωνα με τις υποδείξεις της Υπηρεσίας Δόμησης.
παράγραφος 6
Σε κάθε περίπτωση δεν επιτρέπεται έκδοση άδειας δόμησης σε ακίνητο με αυθαίρετες κατασκευές που δεν μπορούν να νομιμοποιηθούν, δεν έχουν εξαιρεθεί από κατεδάφιση, δεν έχει ανασταλεί η κατεδάφισή τους με τις εκάστοτε ισχύουσες διατάξεις περί αυθαιρέτων ή δεν έχουν κατεδαφιστεί.
Άρθρο 5: Χρήση κτιρίων
Σημειώνεται ότι το άρθρο 5 ισχύει μόνον σε περιοχές εντός σχεδίου και σε οικισμούς προ του 1923 στερούμενους ρυμοτομικού σχεδίου.
παράγραφος 2
Μέχρι την εφαρμογή της Ταυτότητας κτιρίου, απαιτείται απλή ενημέρωση του φακέλου της οικοδομικής άδειας ή άδειας δόμησης για τυχόν τροποποιούμενες επί μέρους μελέτες, με την επιφύλαξη των διατάξεων του άρθρου 4 παράγραφοι 1)στ και 1)ζ.
Επισημαίνεται ότι όταν στα σχέδια της οικοδομικής αδείας αναγράφεται η χρήση κατάστημα, η χρήση αφορά στις εμπορικές επιχειρήσεις, ενώ οι λοιπές χρήσεις υγειονομικού ενδιαφέροντος δεν θεωρούνται καταστήματα, λόγω του ότι η άδεια δόμησης εκδίδεται με άλλες προϋποθέσεις. Σημειώνεται ότι τα εμπορικά καταστήματα και τα καταστήματα υγειονομικού ενδιαφέροντος (αναψυκτήρια, εστιατόρια κ.λ.π) αποτελούν διακριτές κατηγορίες χρήσεων, σύμφωνα με το άρθρο 1 παράγραφος Β του από 23-02-1987 προεδρικού διατάγματος (ΦΕΚ 166/Δ/1987) και του Κτιριοδομικού Κανονισμού (ΦΕΚ 59/Δ/1989). Επομένως απαιτείται άδεια δόμησης για την αλλαγή χρήσης καταστήματος σε κατάστημα υγειονομικού ενδιαφέροντος (π.χ. εστιατόριο - αναψυκτήριο).
παράγραφος 3
Επισημαίνεται ότι δεν δύναται να χορηγηθεί άδεια δόμησης αλλαγής χρήσης σε κτίριο το οποίο ρυμοτομείται (εμπίπτει σε δημόσιο κοινόχρηστο χώρο) σύμφωνα με το ισχύον ρυμοτομικό σχέδιο, ενώ δύναται να εκδοθεί άδεια δόμησης αλλαγής χρήσης σε νομίμως υφιστάμενο κτίριο το οποίο δεν ρυμοτομείται και μπορεί να υπερβαίνει την κάλυψη, τον συντελεστή δόμησης, το ύψος ή τον όγκο των ισχυόντων όρων δόμησης της εν λόγω περιοχής.
Άρθρο 6: Προστασία Αρχιτεκτονικής και Φυσικής Κληρονομιάς
παράγραφος 6)α
Οι διατάξεις της παραγράφου 6.α εφαρμόζονται στην περίπτωση κτιρίων / δομικών έργων που καταρρέουν από οποιοδήποτε αίτιο (φθορά του χρόνου, πυρκαγιά, σεισμό, πλημμύρα, κατολίσθηση κ.λ.π.), ή βρίσκονται σε κατάσταση ετοιμορροπίας και επιβάλλεται η μερική ή ολική κατεδάφισή τους σε εκτέλεση πρωτοκόλλου επικινδύνου ετοιμορροπίας, για τα οποία όμως έχει ήδη κινηθεί η διαδικασία χαρακτηρισμού τους ως διατηρητέων με την κοινοποίηση της προβλεπόμενης αιτιολογικής έκθεσης κατά τα οριζόμενα στην παράγραφο 3 του άρθρου 6.
Επισημαίνεται ότι σύμφωνα με την παράγραφο 2 του άρθρου 21 του νόμου 4030/2011, σε περίπτωση κτιρίων η χώρων που έχουν κηρυχθεί ως διατηρητέοι η μπορεί να χαρακτηριστούν ως διατηρητέοι, το οικείο Συμβούλιο Αρχιτεκτονικής έχει την αρμοδιότητα και οφείλει να γνωμοδοτεί και να διατυπώνει προτάσεις εντός 15 ημερών από την υποβολή της έκθεσης επικινδύνως ετοιμόρροπων κατασκευών σχετικά με τη δυνατότητα και τους τρόπους διατήρησής τους.
Η επιβαλλόμενη ανακατασκευή υλοποιείται βάσει λεπτομερούς μελέτης αποτύπωσης, φωτογραφικής και κάθε άλλης δυνατής τεκμηρίωσης της υφιστάμενης κατάστασης.
Οι ανωτέρω εργασίες προηγούνται υποχρεωτικά της υλοποίησης των μέτρων που επιβάλλονται από το πρωτόκολλο ετοιμορροπίας για την μερική ή ολική κατεδάφιση του κτιρίου, σύμφωνα με τις ισχύουσες διατάξεις.
Ο φάκελος της μελέτης ανακατασκευής με τα στοιχεία τεκμηρίωσης και τη γνώμη του οικείου Συμβουλίου Αρχιτεκτονικής υποβάλλεται στην κατά περίπτωση αρμόδια Υπηρεσία του Υπουργείου Περιβάλλοντος, Ενέργειας και Κλιματικής Αλλαγής, του Υπουργείου Μακεδονίας - Θράκης ή του Υπουργείου Ναυτιλίας και Αιγαίου, προκειμένου να προωθηθεί η προβλεπόμενη διαδικασία έκδοσης της Υπουργικής Απόφασης για την ανακατασκευή του κτιρίου (σύνταξη αιτιολογικής έκθεσης και υποβολή του θέματος με μέριμνα της Διεύθυνσης Αρχιτεκτονικής του Υπουργείου Περιβάλλοντος, Ενέργειας και Κλιματικής Αλλαγής στο Κεντρικό Συμβούλιο Αρχιτεκτονικής για διατύπωση γνώμης - βλέπε και περίπτωση Β.γ του υπ' αριθμόν 32326/2012 / Διεύθυνση Αρχιτεκτονικής / ΥΠΕΚΑ διευκρινιστικού εγγράφου για την εφαρμογή διατάξεων του άρθρου 6 του νόμου 4067/2012 που αναρτήθηκε στον ιστότοπο του Υπουργείου Περιβάλλοντος, Ενέργειας και Κλιματικής Αλλαγής την 21-09-2012)
παράγραφος 6)β
Οι διατάξεις της παραγράφου 6)β εφαρμόζονται στην περίπτωση διατηρητέων κτιρίων / δομικών έργων (για τα οποία δηλαδή έχει ήδη εκδοθεί η σχετική διοικητική πράξη χαρακτηρισμού) που καταρρέουν από οποιοδήποτε αίτιο (φθορά του χρόνου, πυρκαγιά, σεισμό, πλημμύρα, κατολίσθηση κλπ), ή βρίσκονται σε κατάσταση ετοιμορροπίας και επιβάλλεται η μερική ή ολική κατεδάφισή τους σε εκτέλεση πρωτοκόλλου επικινδύνου ετοιμορροπίας. Και για τις εν λόγω περιπτώσεις ισχύει η υποχρέωση εφαρμογής της διαδικασίας της παραγράφου 2 του άρθρου 21 του νόμου 4030/2011 που αναφέρεται παραπάνω (παράγραφος 6)α).
(Στην περίπτωση αυτή η ανακατασκευή γίνεται σύμφωνα με τις διατάξεις του από 15-04-1988 προεδρικού διατάγματος (ΦΕΚ 317/Δ/1988) μετά από έγκριση της μελέτης από το οικείο Συμβούλιο Αρχιτεκτονικής και έκδοση Άδειας Δόμησης (χωρίς να απαιτείται η έκδοση Υπουργικής Απόφασης).
παράγραφοι 6)α & 6)β
Στον φάκελο για την ανακατασκευή του διατηρητέου κτιρίου θα πρέπει να περιέχονται κατ' ελάχιστο τα εξής στοιχεία:
1) αρχιτεκτονική μελέτη η οποία θα περιλαμβάνει λεπτομερή αποτύπωση, καθώς και φωτογραφική και κάθε άλλη δυνατή τεκμηρίωση της υφιστάμενης κατάστασης.
Οι εργασίες αποτύπωσης και τεκμηρίωσης προηγούνται υποχρεωτικά της υλοποίησης των μέτρων που επιβάλλονται από τυχόν πρωτόκολλο ετοιμορροπίας για την μερική ή ολική κατεδάφιση του κτιρίου, σύμφωνα με τις ισχύουσες διατάξεις.
2) γνωμοδότηση του οικείου Συμβουλίου Αρχιτεκτονικής επί της πρότασης της αρχιτεκτονικής μελέτης.
3) οι κατά περίπτωση απαιτούμενες γνωμοδοτήσεις ή εγκρίσεις άλλων Υπηρεσιών στο πλαίσιο εφαρμογής της ισχύουσας πολεοδομικής, αρχαιολογικής (π.χ. κτίριο προγενέστερο των 100 ετών, κτίριο χαρακτηρισμένο και ως νεώτερο μνημείο, εντός ορίων αρχαιολογικού χώρου, πλησίον αρχαίου η νεωτέρου μνημείου) και λοιπής νομοθεσίας και νομολογίας.
Εξυπακούεται ότι στις περιπτώσεις επεμβάσεων πέραν της ανακατασκευής, όπως διαφοροποίησης της μορφής του κελύφους ή των όψεων του προστατευομένου αντικειμένου, κατασκευής νέου φέροντος οργανισμού από οπλισμένο σκυρόδεμα, προσθηκών ή κατασκευής νέων κτιρίων σε ακίνητα στα οποία υπάρχουν διατηρητέα κτίρια, τηρείται πάντοτε η διαδικασία καθορισμού συμπληρωματικών όρων και περιορισμών δόμησης της παραγράφου 3.γ του άρθρου 6 του νόμου 4067/2012 με έκδοση Υπουργικής Απόφασης.
Άρθρο 8: Ειδικές περιπτώσεις
παράγραφος 1
Ως εκτάσεις για τις οποίες εγκρίθηκε το ρυμοτομικό σχέδιο και απεικονίζονται σε αυτό οι γραμμές των ορίων τους κατά τα παραπάνω, νοούνται αυτές που ενέπιπταν σε θεσμικό πλαίσιο που καθόριζε πολεοδόμηση σε συγκεκριμένη επιφάνεια, όπως π.χ. οι εκτάσεις οικιστικών διανομών στεγαστικής αποκατάστασης από κρατικούς φορείς (άρθρο 37 του νόμου 1337/1983), οι εκτάσεις συνοικισμών και συνεταιρισμών (άρθρο 7 του από 17-07-1923 νομοθετικού διατάγματος, άρθρο 21 παράγραφος 6 και άρθρο 28 παράγραφος 1 του Γενικού Οικοδομικού Κανονισμού 1929, νομοθετικό διάταγμα 690/1948) και οι εκτάσεις ιδιωτικής πολεοδόμησης - οργανωμένης δόμησης (αναγκαστικός νόμος 625/1968 και Κεφαλαίου Δ' του Γενικού Οικοδομικού Κανονισμού 1973).
παράγραφος 2
Διευκρινίζεται ότι η εν λόγω παράγραφος αναφέρεται σε ιδιοκτησίες που έχουν δημιουργηθεί μέχρι τη δημοσίευση του νόμου 1577/1985.
παράγραφος 4
Διευκρινίζεται ότι η εν λόγω παράγραφος αναφέρεται σε οικόπεδα που έχουν παραχωρηθεί από το κράτος μέχρι τη δημοσίευση του νόμου 1577/1985.
Άρθρο 10: Κίνητρα για την περιβαλλοντική αναβάθμιση και βελτίωση της ποιότητας ζωής σε πυκνοδομημένες και αστικές περιοχές
Το παρόν άρθρο εφαρμόζεται για τις άδειες δόμησης που εκδίδονται μετά την ισχύ του νόμου και δεν αφορά υφιστάμενες οικοδομές των οποίων έχει λήξει η οικοδομική άδεια. Για οικοδομικές άδειες που βρίσκονται σε ισχύ κατά την έναρξη ισχύος του νόμου, εφαρμόζεται το άρθρο 34 του νόμου. Η εφαρμογή των διατάξεων του παρόντος άρθρου αφορά σε οικόπεδα άρτια κατά κανόνα, αυτοτελή ή δημιουργούμενα εκ συνενώσεως που εμπίπτουν στις περιοχές της παραγράφου 1 του άρθρου. Σημειώνεται ότι για την εφαρμογή του παρόντος άρθρου, δεν αποτελεί προϋπόθεση η έκδοση του προεδρικού διατάγματος της παραγράφου 2. Για τη διευκόλυνση των ιδιωτών μελετητών, για τον υπολογισμό των πολεοδομικών μεγεθών σε εφαρμογή του άρθρου 10, την ηλεκτρονική μορφή της παρούσας που είναι αναρτημένη στον ιστότοπο του Υπουργείου Περιβάλλοντος, Ενέργειας και Κλιματικής Αλλαγής (www.ypeka.gr) συνοδεύει πίνακας Excel. Ειδικότερα διευκρινίζονται τα παρακάτω:
παράγραφος 1)β & παράγραφος 1)δ
Η απόσυρση κτιρίου για την εφαρμογή του άρθρου 10 βεβαιώνεται κατά την αίτηση έγκρισης άδειας δόμησης με την προσκόμιση άδειας κατεδάφισης που έχει εκδοθεί μετά την εφαρμογή του νόμου 4067/2012 και την τεχνική έκθεση της άδειας κατεδάφισης, στην οποία συμπεριλαμβάνεται ο χαρακτηρισμός της ενεργειακής κατηγορίας του κτιρίων που αποσύρονται και το συνολικό εμβαδόν που έχουν άνω του διαμορφωμένου εδάφους, ισόγειο, α' όροφος κ.λ.π. ανεξάρτητα χρήσης.
Η επιφάνεια που αποδίδεται σε κοινή χρήση έχει τη μορφή διαπλάτυνσης κοινόχρηστου χώρου μέσα από την εγκεκριμένη ρυμοτομική γραμμή και προς την πλευρά του ακινήτου.
Στον χώρο που αποδίδεται σε κοινή χρήση επιτρέπονται διαμορφώσεις για την είσοδο στην ιδιοκτησία αυτοκινήτων και πεζών. Ο εν λόγω παραχωρημένος σε δημόσια χρήση χώρος εξομοιώνεται με κοινόχρηστο χώρο της πόλης για την εφαρμογή του άρθρου 16 του παρόντος νόμου. Σε περίπτωση που η παραχωρούμενη επιφάνεια δεν επαρκεί για να αποδοθεί σε όλο το μήκος του προσώπου του οικοπέδου με ελάχιστο βάθος 1,5 m, η μία πλευρά της ταυτίζεται κατ' ελάχιστο με το 1/3 του μήκους

παράγραφος 1)ζ
Στην περίπτωση αρτίων κατά κανόνα οικοπέδων εμβαδού τουλάχιστον 4.000 m2 για τα οποία εφαρμόζεται η εν λόγω διάταξη, η αύξηση της επιτρεπόμενης δόμησης υπολογίζεται επί του συνολικού εμβαδού του οικοπέδου. Το σύνολο δε του ακαλύπτου χώρου που προκύπτει από την εφαρμογή της διάταξης αποδίδεται όλο σε κοινή χρήση.
παράγραφος 1)η
Προϋπόθεση για την εφαρμογή της συγκεκριμένης διάταξης για την υλοποίηση μελέτης που έχει βραβευτεί σε αρχιτεκτονικό διαγωνισμό, είναι ο διαγωνισμός να έχει διενεργηθεί με βάση το πλαίσιο διενέργειας αρχιτεκτονικών διαγωνισμών και γενικά των διαγωνισμών μελετών με απονομή βραβείων, για μελέτες ή για σχέδια ιδεών κάθε αξιόλογου τεχνικού έργου του Δημοσίου ή των Νομικών προσώπων της παραγράφου 9 του άρθρου 1 του νόμου 3316/2005, όπως εκάστοτε ισχύει.
παράγραφοι 1)α, 1)β, 1)γ & 1)δ (σε συνδυασμό με το άρθρο 17 παράγραφος 2)α)
Η φύτευση του ακαλύπτου χώρου κατά τα 2/3 εφαρμόζεται επί του εμβαδού του ακαλύπτου χώρου που προκύπτει είτε μετά την παραχώρηση τμήματος του οικοπέδου σε κοινή χρήση, είτε μετά από προσαύξηση που προκύπτει από τη μείωση της κάλυψης του πραγματοποιούμενου κτιρίου ή μετά από συνδυασμό και των δύο περιπτώσεων.
παράγραφος 2 & παράγραφος 3
Η συμβολαιογραφική πράξη απόδοσης σε κοινή χρήση καταρτίζεται και μεταγράφεται με μέριμνα του ιδιοκτήτη, κατ' αναλογία της διαδικασίας των ρυμοτομούμενων τμημάτων του οικοπέδου σύμφωνα με την εγκύκλιο 25/1987 του Υπουργείου Περιβάλλοντος, Χωροταξίας και Δημοσίων Έργων. Η παραχωρούμενη σε κοινή χρήση επιφάνεια διατηρεί εφεξής το δημόσιο κοινόχρηστο χαρακτήρα της. Αντιστοίχως, τα πολεοδομικά κίνητρα και τα εξ αυτών απορρέοντα δικαιώματα που παρέχονται στο αρχικό οικόπεδο (δηλαδή πριν την απόδοση σε κοινή χρήση τμήματος αυτού) παραμένουν εσαεί στο απομειωμένου εμβαδού οικόπεδο, μετά την απόδοση σε κοινή χρήση τμήματος αυτού. Για τον υπολογισμό των πολεοδομικών μεγεθών λαμβάνεται υπ' όψη η αρχική - προ της απόδοσης σε κοινή χρήση - έκταση του οικοπέδου και ο εκάστοτε ισχύων συντελεστής δόμησης της περιοχής.
Η χρήση του παραχωρημένου χώρου είναι αυτή που περιοριστικά αναφέρεται στην παράγραφο 3 του παρόντος. Η διαμόρφωση, συντήρηση και λειτουργία του βαρύνει το Δήμο. Όλα τα ανωτέρω περιγράφονται αναλυτικά στην συμβολαιογραφική πράξη απόδοσης σε κοινή χρήση. Μετά την έκδοση της άδειας δόμησης, η Υπηρεσία Δόμησης διαβιβάζει αντίγραφο της άδειας δόμησης και της συμβολαιογραφικής πράξης στην αρμόδια Τεχνική Υπηρεσία του Δήμου προκειμένου να επιληφθεί των αναφερόμενων στην παράγραφο 3.
Άρθρο 11: Συντελεστής δόμησης
παράγραφος 6)α
Διευκρινίζεται ότι ελεύθερα φέροντα ή μη στοιχεία (π.χ. υποστύλωμα, τοιχίο, τοίχος, κλπ) που ορίζουν το περίγραμμα του ανοικτού ημιυπαίθριου χώρου και δεν περιλαμβάνονται στο περίγραμμα των κλειστών χώρων του κτιρίου, δεν προσμετρούνται στον συντελεστή δόμησης.
παράγραφος 6)β
Τα κτίρια αμιγούς χρήσης στάθμευσης αυτοκινήτων, ελέγχονται ως προς τη θέση τους στο οικόπεδο, το ποσοστό κάλυψής τους, το ύψος τους και τον πραγματοποιούμενο όγκο τους, ενώ δεν προσμετρούνται στην εκμετάλλευση του οικοπέδου (συντελεστής δόμησης). Ο ισχύων συντελεστής δόμησης της περιοχής χρησιμοποιείται μόνον για τον υπολογισμό του συντελεστή όγκου του οικοπέδου.
παράγραφος 6)δ
Για την εφαρμογή της παρούσας παραγράφου διευκρινίζεται ότι στα 25 m2 ανά όροφο συμπεριλαμβάνονται: η καθαρή επιφάνεια της κλίμακας, το φανάρι της κλίμακας, το φρεάτιο του ανελκυστήρα και τα περιμετρικά τοιχία που το ορίζουν, καθώς και η συνολική επιφάνεια που προκύπτει από το πλατύσκαλο έμπροσθεν της κλίμακας (πλάτους τουλάχιστον ίσου με αυτήν) και του ανελκυστήρα (πλάτους τουλάχιστον 1,50 m) σε οριζόντια προβολή. Στα 25 m2 περιλαμβάνονται επίσης και τμήματα του φέροντος οργανισμού του κτιρίου που τυχόν εισέχουν στο χώρο του κλιμακοστασίου (όπως π.χ. τμήματα υποστυλωμάτων ή τοιχίων με πλάτος μεγαλύτερο του πλάτους του τοίχου που περιβάλλει το κλιμακοστάσιο).
Οι διάδρομοι που οδηγούν σε επιμέρους ιδιοκτησίες και βρίσκονται σε συνέχεια του πλατύσκαλου της κλίμακας ή του ανελκυστήρα δεν συμπεριλαμβάνονται στην έννοια του κοινόχρηστου κλιμακοστασίου. Στο επίπεδο της εισόδου κτιρίων με κύρια χρήση κατοικίας, η ανωτέρω επιφάνεια προσαυξάνεται έως τα 40 m2 για τη δημιουργία ευρύχωρης εισόδου στο κτίριο ως και αποθήκης στην περίπτωση κτιρίου σε pilotis.
Η διάταξη της παραγράφου 6)δ εφαρμόζεται μόνον για τα κλιμακοστάσια που είναι υποχρεωτικά από τον Κτιριοδομικό Κανονισμό.
Σε περίπτωση κτιρίου το οποίο έχει τόσο κοινόχρηστο κλιμακοστάσιο όσο και εσωτερική κλίμακα σε αυτοτελή ανεξάρτητη ιδιοκτησία του (π.χ. πολυώροφο κτίριο με μεζονέτα), δεν προσμετρούνται στη δόμηση μόνον τα τετραγωνικά του κοινόχρηστου κλιμακοστασίου.
Ενδεικτικά παραδείγματα κλιμακοστασίων

παράγραφος 6)ε
Η περίπτωση αφορά κυρίως συγκροτήματα αυτοτελών ανεξάρτητων ιδιοκτησιών (π.χ. μεζονέτες εν σειρά οι οποίες δεν διαθέτουν κοινόχρηστο κλιμακοστάσιο και έχουν ανεξάρτητη είσοδο με εσωτερική σκάλα επικοινωνίας των ορόφων τους) και αποκλειστικά την επιφάνεια της εσωτερικής τους κλίμακας συνολικού εμβαδού έως 12 m2. Η εφαρμογή της παρούσας δεν συναρτάται με την πιθανή πρόβλεψη ανελκυστήρα της παραγράφου κ)ζ του παρόντος άρθρου.
παράγραφος 6)στ
Στην περίπτωση που υπάρχει εσωτερική κλίμακα για την επικοινωνία των ορόφων (κοινόχρηστη ή όχι) αυτή προσμετράται στον συντελεστή δόμησης, εφ' όσον αφαιρούνται οι εξωτερικές ανοικτές κλίμακες. Σε περίπτωση που κατασκευάζονται σε οικόπεδο περισσότερα του ενός κτίρια, δεν προσμετρώνται στη δόμηση έως και δύο ανοιχτά κλιμακοστάσια για κάθε κτίριο.
παράγραφοι 6)η & 6)κ)θ
Δεν προσμετράται στη δόμηση το άνοιγμα σε κάθε πλάκα δαπέδου των κατακόρυφων αγωγών εμβαδού τουλάχιστον 0,50 m2, εξυπηρέτησης μηχανολογικών εγκαταστάσεων του κτιρίου. Ως διαμπερές άνοιγμα νοείται το άνοιγμα που διαπερνά το κέλυφος του κτιρίου όπως αυτό ορίζεται από τα εξωτερικά φέροντα στοιχεία του, τα εξωτερικά στοιχεία πλήρωσης του φέροντα οργανισμού και τη στέγη.
Δεν προσμετράται στη δόμηση το άνοιγμα σε κάθε πλάκα δαπέδου όλων των διαμπερών ανοιγμάτων, ανεξαρτήτως διαστάσεων μορφής και επιφάνειας, καθέτων, οριζοντίων ή με τεθλασμένες ή με καμπύλες διαδρομές. Όταν λειτουργικοί χώροι του κτιρίου κύριας ή βοηθητικής χρήσης (διάδρομοι κυκλοφορίας, κλιμακοστάσια, καθιστικά κ.ά.) ταυτίζονται με το διαμπερές άνοιγμα ή τμήμα αυτού τότε η επιφάνεια αυτή προσμετράται στο συντελεστή δόμησης. Από τα διαμπερή ανοίγματα δεν αποκτούν προϋποθέσεις φυσικού φωτισμού οι χώροι κύριας χρήσης, εκτός αν πρόκειται για εσωτερικό αίθριο. Τα διαμπερή ανοίγματα δεν κλείνουν με οποιονδήποτε τρόπο.
παράγραφος 6)θ
Δεν προσμετρώνται στη δόμηση όλοι οι υπόγειοι όροφοι στάθμευσης αυτοκινήτων.
παράγραφος 6)ι
Δεν προσμετράται στη δόμηση σε κτίριο κατοικίας, ένας υπόγειος όροφος αποθηκών ίσος με την κάλυψη του κτιρίου. Οι αποθήκες που εξυπηρετούν την ανωδομή κατοικίας μπορεί να μοιράζονται σε περισσότερους του ενός υπογείους ορόφους αρκεί το άθροισμά τους να είναι ίσο με την κάλυψη του κτιρίου.
Δεν προσμετράται στη δόμηση το 50% του υπογείου κατοικίας που λειτουργεί ως προσάρτημα της κατοικίας χωρίς να καλύπτει προϋποθέσεις φυσικού φωτισμού και αερισμού. Στον υπολογισμό αυτό συμπεριλαμβάνονται και τυχόν βοηθητικοί χώροι για την εξυπηρέτηση του υπογείου της κατοικίας (χώρος υγιεινής, διάδρομοι, κλιμακοστάσιο κ.λ.π.). Δεν συμπεριλαμβάνονται και δεν προσμετρώνται στη δόμηση τυχόν αποθήκες που βρίσκονται στο ίδιο επίπεδο υπογείου. Σε περίπτωση που δεν πραγματοποιείται δεύτερος υπόγειος όροφος, το λεβητοστάσιο και η αποθήκη του επιτρέπεται να βρίσκεται κατ' επέκταση του υπόγειου χώρου κύριας χρήσης της κατοικίας αρκεί να αποτελεί ανεξάρτητο πυροδιαμέρισμα και να έχει έξοδο προς ακάλυπτο χώρο του οικοπέδου ανεξάρτητη του υπολοίπου χώρου υπογείου. Η έννοια του υπογείου νοείται όπως αναφέρεται στην παράγραφο 87 του άρθρου 2 και με την επιφύλαξη ανωτέρω στην παρούσα εγκύκλιο.
παράγραφος 6)ι)α
Δεν προσμετράται στη δόμηση σε κτίριο μικτής χρήσης το 50% του υπογείου που έχει χρήση την ειδική χρήση του ισογείου χωρίς προϋποθέσεις φυσικού φωτισμού ή αερισμού. Για παράδειγμα, ένα εστιατόριο που καταλαμβάνει όλο τον ισόγειο όροφο, μπορεί να έχει χώρους υπογείου κατά το 50% της κάτοψής του, όπως μαγειρεία, WC, χώρο λειτουργίας εστιατορίου. Το υπόλοιπο υπόγειο διατίθεται για αποθήκες του εστιατορίου.
Ομοίως ισχύει και για τμήμα ισογείου ειδικής χρήσης, όπου το υπόγειο που αντιστοιχεί στην κάτοψη ισογείου λειτουργεί κατά το 50% με τη χρήση ισογείου και το υπόλοιπο 50% διατίθεται για αποθήκες της ειδικής χρήσης. Το τμήμα ισογείου που είναι κατοικία αντιμετωπίζεται σύμφωνα με την παράγραφο 6)ι.
Κάτω από τον όροφο υπογείου ειδικής χρήσης μπορεί να υφίσταται υπόγειος όροφος αποθηκών με επιφάνεια ίση με αυτήν της κάλυψης για την εξυπηρέτηση των κατοικιών της ανωδομής. Το σύνολο των υπογείων αποθηκών κτιρίου μικτής χρήσης που εξυπηρετούν κατοικίες, δεν μπορούν να υπερβαίνουν την κάλυψη του κτιρίου.
Δεδομένου ότι ένα κτίριο μικτής χρήσης μπορεί να είναι και ειδικό κτίριο, η παρούσα παράγραφος ισχύει ομοίως και σε ειδικά κτίρια.
παράγραφος 6)ι)β
Στα ειδικά κτίρια δεν προσμετράται ένας υπόγειος όροφος επιφανείας ίσης με εκείνη που καταλαμβάνει το κτίριο για βοηθητική χρήση. Επίσης δεν προσμετράται ο πρώτος υπόγειος όροφος με κύρια χρήση για τις κατηγορίες κτιρίων που αναφέρονται, ανεξάρτητα εκπλήρωσης των προϋποθέσεων φυσικού φωτισμού και αερισμού.
παράγραφος 6)ι)ζ (σε συνδυασμό με το άρθρο 11 παράγραφος 3 & με το άρθρο 12 παράγραφος 2)
Διακρίνονται δύο περιπτώσεις:
α) Σε περίπτωση που έχει συσταθεί κάθετη ιδιοκτησία και οι οικοδομές των συνιδιοκτητών απέχουν μεταξύ τους την προβλεπόμενη από τον παρόντα νόμο απόσταση, τότε το ποσοστό του ελευθέρου χώρου pilotis ελέγχεται για κάθε οικοδομή ξεχωριστά.
β) Σε περίπτωση που οι οικοδομές εφάπτονται στο καθορισμένο κοινό όριο της κάθετης συνιδιοκτησίας, τότε το ποσοστό του ελευθέρου χώρου pilotis ελέγχεται επί του ενιαίου πλέον κτιρίου των συνιδιοκτητών.
παράγραφος 6)ι)θ
Η διάταξη αυτή εφαρμόζεται σε νέα κτίρια στα οποία το πάχος της θερμομόνωσης το οποίο προκύπτει από τις ισχύουσες διατάξεις και υπερβαίνει τα 6 cm δεν προσμετράται στο συντελεστή δόμησης το πέραν των 6 εκατοστών και αιτιολογείται από αντίστοιχη μελέτη.
παράγραφος 6)κ
Η διάταξη αυτή εφαρμόζεται σε υφιστάμενα κτίρια που έχουν μελετηθεί με προγενέστερους του νόμου 4067/2012 κανονισμούς, τα οποία αναβαθμίζονται ενεργειακά με προσθήκη εξωτερικής θερμομόνωσης κ.λ.π. Δεν προσμετρούνται στη δόμηση οι ανωτέρω προσθήκες για διάσταση αυτών μέχρι 15 cm και οι εν λόγω επιφάνειες μπορούν να εισχωρούν στους υποχρεωτικούς ακάλυπτους χώρους.
παράγραφος 6)κ)β
Η διάταξη εφαρμόζεται σε νέες κατασκευές για τις οποίες προβλέπεται περιμετρική φέρουσα τοιχοποιία ή περιμετρικός φέρων οργανισμός και τοίχοι πλήρωσής του από τα αναφερόμενα υλικά. Σε περίπτωση προσθήκης σε υφιστάμενη οικοδομή με φέρουσα τοιχοποιία κατά τα ανωτέρω, η φέρουσα τοιχοποιία του υφισταμένου κτιρίου προσμετράται στο συντελεστή δόμησης.
παράγραφος 6)κ)γ (σε συνδυασμό με το άρθρο 17 παράγραφος 4 & παράγραφος 8)
Δεν προσμετράται στη δόμηση η επιφάνεια στεγασμένης πλατφόρμας (ανελκυστήρα) οχημάτων έως και 25 m2, η οποία μπορεί να κατασκευάζεται μέσα στους υποχρεωτικά ακάλυπτους χώρους του οικοπέδου εκτός του προκηπίου (πρασιάς) με τις προϋποθέσεις του άρθρου 17.
παράγραφος 6)κ)δ
Τα υπόσκαφα κτίρια με τις προϋποθέσεις που αναλύονται στην παρούσα διάταξη προσμετρούνται στη δόμηση κατά τα αναφερόμενα ποσοστά της επιφάνειάς τους και ανάλογα με τη χρήση τους και μελετώνται με τις προϋποθέσεις που αναλύονται στην παρούσα διάταξη και βασικό κριτήριο ένταξής τους στο περιβάλλον, αυτό της επαναφοράς του εδάφους στην αρχική του μορφή. Έχουν μία μόνο όψη επιφάνειας επίπεδης ή αποτελούμενης από επιμέρους συνεχόμενες επίπεδες επιφάνειες ή καμπύλες, ύψους ενός ορόφου. Το άθροισμα του μήκους των κατακόρυφων διόδων για επικοινωνία με τον περιβάλλοντα χώρο ή ανοιγμάτων για φωτισμό και αερισμό του υποκείμενου χώρου, μπορεί να είναι μικρότερο ή ίσο με το μήκος του περιγράμματος του κτιρίου, το δε μέγιστο πλάτος τους είναι 2.00 m. Τα υπόσκαφα κτίρια εξασφαλίζουν επαρκή φυσικό φωτισμό και αερισμό με τις διόδους αυτές, το μέγεθος των οποίων συσχετίζεται με την ανωτέρω ανάγκη και αξιολογείται από το Συμβούλιο Αρχιτεκτονικής. Δεν επιτρέπεται η κατασκευή περιμετρικής διόδου στο υπόσκαφο κτίριο.
Ενδεικτικό Υπόσκαφο Κτίριο

παράγραφος 6)κ)ζ
Δεν προσμετράται στη δόμηση η επιφάνεια φρεατίου 1,60 x 1.90 m σε κτίρια, που προορίζεται για κατασκευή ανελκυστήρα για εμποδιζόμενα άτομα, όταν δεν υπάρχει απαίτηση κατασκευής του. Εάν η επιφάνεια αυτή είναι εξ' αρχής ανοιχτή στο δάπεδο του ορόφου, για λόγους ασφαλείας κατασκευάζεται είτε περιμετρική τοιχοποιία, είτε δάπεδο σε συνέχεια του δαπέδου του ορόφου που μπορεί να αφαιρεθεί όταν χρησιμοποιηθεί το άνοιγμα για το σκοπό αυτό. Εάν η επιφάνεια κατασκευαστεί ενιαία χωρίς φρεάτιο, η στατική μελέτη πρέπει να προβλέπει την ασφαλή καθαίρεση του τμήματος της επιφάνειας που αντιστοιχεί στο μελλοντικό φρεάτιο, όταν αυτό διανοιχτεί.
Άρθρο 12: Ποσοστό κάλυψης
παράγραφος 1)α
Το ποσοστό κάλυψης του οικοπέδου δεν μπορεί να υπερβαίνει το 60% της επιφάνειάς του. Κατ' εξαίρεση, επιτρέπεται η πραγματοποίηση ποσοστού κάλυψης έως 70% προκειμένου να εξασφαλιστεί καλυπτόμενη επιφάνεια κτιρίου μέχρι 120 m2.
παράγραφος 1)δ (σε συνδυασμό με το άρθρο 17 παράγραφος 2)γ)
Τα αίθρια συμμετέχουν στον υπολογισμό του υποχρεωτικού ακαλύπτου αρκεί να επικοινωνούν με τα υπόλοιπα τμήματα που συμμετέχουν στον υπολογισμό αυτό μέσω κοινόχρηστου χώρου της οικοδομής.
παράγραφος 4)α
Οι επιφάνειες των ορθών προβολών σε οριζόντιο επίπεδο των τμημάτων (α,β,γ,δ,α) και (α',β',γ',δ',α') του ακαλύπτου χώρου που εισέχουν στο κτίριο, δεν προσμετρούνται στην επιτρεπόμενη κάλυψη του οικοπέδου ανεξάρτητα από το πλάτος και το βάθος τους, ακόμη και αν περιλαμβάνουν φέροντα στοιχεία.

Άρθρο 13: Συντελεστής όγκου
παράγραφος 2 (σε συνδυασμό με το άρθρο 11 παράγραφος 6)ι)ζ)
Ο κλειστός χώρος της pilotis προσμετράται στον όγκο του κτιρίου.
Άρθρο 14: Θέση κτιρίου
Ενδεικτικά Παραδείγματα για θέση νέου κτιρίου
Παράδειγμα 1

Παράδειγμα 2

Όπου στο παρόν άρθρο γίνεται αναφορά σε απόσταση Δ ή δ, εννοείται η υποχρεωτική απόσταση του νέου κτιρίου από το όριο της ιδιοκτησίας στην οποία θα ανεγερθεί.
παράγραφος 1)γ
Για την εφαρμογή του εδαφίου (γ), διευκρινίζεται ότι στην έννοια του κτιρίου που εφάπτεται στο όριο δεν μπορεί να συμπεριληφθούν ο ενιαίος χώρος στάθμευσης του άρθρου 11 παράγραφος 6)ι)γ καθώς και όλες οι κατασκευές του άρθρου 17.
παράγραφος 1)στ
Σε περίπτωση που υπάρχει υποχρέωση ακάλυπτου χώρου και από τα δύο πλάγια όρια, το κτίριο τοποθετείται με πλάτος 9 m ισομοιράζοντας τους υποχρεωτικούς ακάλυπτους χώρους από τα δύο πλάγια όριά του και με ελάχιστη διάσταση αυτών τουλάχιστον 1 μέτρου. Στην περίπτωση που το άθροισμα των δύο πλαγίων αποστάσεων είναι μικρότερο των 2 m τότε το κτίριο τοποθετείται σε επαφή με το ένα όριο και απέχει το σύνολο της απόστασης από το άλλο όριο.
παράγραφος 1)η (σε συνδυασμό με το άρθρο 1 παράγραφος 3)ι)
Για την εφαρμογή του εδαφίου (η) σε υφιστάμενους οικισμούς χωρίς εγκεκριμένο σχέδιο, διευκρινίζεται ότι η απόσταση Δ ή δ ορίζεται σε 2,50 m, εκτός εάν από ειδικά διατάγματα προστασίας παραδοσιακών οικισμών ορίζεται διαφορετικά.
παράγραφος 3
Το ελάχιστο πλάτος του κατακόρυφου διαμπερούς ανοίγματος φωταγωγού του κτιρίου μέσω του οποίου μπορεί να πληρούνται οι προϋποθέσεις φυσικού φωτισμού και αερισμού ενός κλιμακοστασίου, είναι το οριζόμενο από τον Κτιριοδομικό Κανονισμό, ήτοι 1.20 m.
Άρθρο 15: Ύψος κτιρίου - αφετηρία μέτρησης υψών - πλάτος δρόμου
παράγραφος 1
Για την εφαρμογή της παρούσας παραγράφου, η διάταξη για συντελεστή δόμησης έως ... νοείται ως για συντελεστή δόμησης έως και ...
παράγραφος 4
Η εν λόγω παράγραφος αποσκοπεί στην προσαρμογή της μελέτης του κτιρίου στο φυσικό έδαφος του ακινήτου και όχι το αντίστροφο, με στόχο τη μικρότερη δυνατή αλλοίωση του φυσικού περιβάλλοντος. Η παράγραφος 4 αναφέρεται στη διαμόρφωση περιβάλλοντος χώρου του κτιρίου και δεν αφορά στις απαιτούμενες εκσκαφές για την κατασκευή του.
Η τροποποίηση της φυσικής στάθμης του εδάφους με δημιουργία τεχνητής στάθμης εδάφους μέχρι ένα μέτρο πάνω ή κάτω από το φυσικό έδαφος, επιτρέπεται σε όλες τις αρχιτεκτονικές μελέτες διαμόρφωσης των ακαλύπτων χώρων του οικοπέδου. Υπέρβαση των ανωτέρω ορίων είναι δυνατή μετά από έγκριση του Συμβουλίου Αρχιτεκτονικής με βάση τεκμηριωμένη μελέτη της διαμόρφωσης του περιβάλλοντος χώρου. Ειδικότερα, σε οικόπεδα με κλίση άνω του 20%, η εκσκαφή του ακαλύπτου χώρου για υποβιβασμό της στάθμης του φυσικού εδάφους με σκοπό τη διαμόρφωση του περιβάλλοντος χώρου, δεν επιτρέπεται να υπερβαίνει τα δύο μέτρα. Ο ανωτέρω περιορισμός δεν αφορά το μέγεθος της επίχωσης η οποία επίσης εγκρίνεται από το οικείο Συμβούλιο Αρχιτεκτονικής, βάσει επαρκούς τεκμηρίωσης για την ανάγκη πραγματοποίησής της.
Για τα κτίρια δημοσίου ενδιαφέροντος και σημασίας, όπως αυτά ορίζονται στο άρθρο 2 παράγραφος 22 του παρόντος νόμου, μπορεί να επιτρέπεται υπέρβαση των καθοριζόμενων ορίων εκσκαφών ή επιχώσεων για οικόπεδα με κλίση άνω του 20%, ύστερα από γνωμοδότηση του Συμβουλίου Αρχιτεκτονικής.
παράγραφος 5
Ενδεικτικές Περιπτώσεις Ιδεατού Στερεού







παράγραφος 6


Άρθρο 16: Λειτουργικά, ενεργειακά και διακοσμητικά στοιχεία στις όψεις του κτιρίου
παράγραφος 5)α
Σε περίπτωση πανταχόθεν ελεύθερων κτιρίων ή γενικά κτιρίων που παρουσιάζουν περισσότερες της μιας συνεχόμενες όψεις (πολυγωνική κάτοψη), ο έλεγχος εφαρμογής του ανώτατου ορίου επιφάνειας κλειστών εξωστών που μπορούν να κατασκευαστούν σε αυτήν (ήτοι 20%), εξετάζεται σε κάθε όψη ξεχωριστά. Σε περίπτωση καμπύλης κάτοψης οι προϋποθέσεις της διάταξης εξετάζονται στο ανάπτυγμα της αντίστοιχης καμπύλης επιφάνειας της όψης.
παράγραφος 5)δ
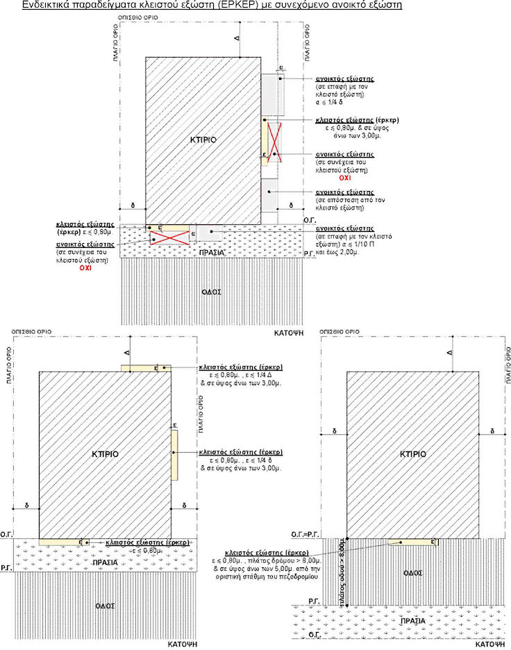
Οι κλειστοί εξώστες επιτρέπονται εντός των πλαγίων υποχρεωτικών ακαλύπτων σε ύψος άνω των 3,00 m. Το ίδιο ελάχιστο ύψος τηρείται και σε περίπτωση κλειστών εξωστών προς τον πίσω υποχρεωτικό ακάλυπτο χώρο του οικοπέδου, ενώ για το προκήπιο δεν υπάρχει σχετική δέσμευση με την προϋπόθεση ότι δεν αναιρείται η έννοια του εξώστη. Κατά συνέπεια, στην τελευταία περίπτωση, θα πρέπει να υπάρχει κενό μεταξύ της τελικής διαμορφωμένης στάθμης του εδάφους και του κλειστού εξώστη. Οι κλειστοί εξώστες επιτρέπονται εντός των υποχρεωτικών ακαλύπτων σε πλάτος μέχρι % Δ ή % δ και μέγιστη διάσταση 0,80 m.
Ενδεικτικά παραδείγματα κατασκευής κλειστών εξωστών (ΕΡΚΕΡ) - Υπολογισμός του 20%



παράγραφος 5)ε

Ανοικτοί εξώστες δεν μπορούν να κατασκευάζονται σε προέκταση των κλειστών εξωστών σε σχέση με τον όγκο του κτιρίου. Είναι δυνατή όμως η κατασκευή ανοικτών εξωστών δίπλα (σε επαφή ή σε απόσταση) από κλειστό εξώστη.
παράγραφος 6 (σε συνδυασμό με την παράγραφο 3)
Οι περιορισμοί της παραγράφου 3 του άρθρου 16 σε σχέση με το πλάτος των εξωστών ισχύουν και στην περίπτωση πεζοδρόμων ή δρόμων ήπιας κυκλοφορίας της παραγράφου 6
Άρθρο 17: Κατασκευές και φυτεύσεις στους ακάλυπτους χώρους και περιφράξεις
παράγραφος 2)α
Στην περίπτωση που δημιουργούνται υπαίθριοι χώροι στάθμευσης με μέγιστη επιτρεπόμενη επιφάνεια έως 10 % της επιτρεπομένης κάλυψης, τότε ο υπολογισμό των 2/3 της υποχρεωτικής φύτευσης λαμβάνεται επί του απομειούμενου κατά τα ανωτέρω υποχρεωτικά ακαλύπτου χώρου του οικοπέδου.
παράγραφος 2)γ & παράγραφος 2)δ
Κάθε ασκεπής επιφάνεια που φυτεύεται σε ελάχιστο πάχος εδάφους 40 cm πάνω από την πλάκα υπογείου, συμμετέχει στον υπολογισμό της απαιτούμενης φύτευσης. Όσον αφορά στα κατακόρυφα διαμπερή ανοίγματα με οποιεσδήποτε διαστάσεις που φυτεύονται στο επίπεδο εδάφους, σημειώνεται ότι συμμετέχουν στον υπολογισμό της φύτευσης, έστω και αν δεν πληρούν τις προϋποθέσεις του υποχρεωτικώς ακαλύπτου χώρου που προβλέπονται στην παράγραφο 1)δ του άρθρου 12. Έτσι, η επιφάνεια φύτευσης μπορεί να διανέμεται και σε εκτός των υποχρεωτικών ακαλύπτων, ακάλυπτους χώρους στο εσωτερικό του κτιρίου.
Οι επιφάνειες εδάφους που συμμετέχουν στη φύτευση δεν μπορεί να επιστρώνονται με διάτρητες πλάκες ή να χρησιμεύουν για τη διέλευση οχημάτων.
παράγραφος 3)α
βλέπε διευκρινίσεις του άρθρου 15 παράγραφος 4
παράγραφος 3)β
Η επίχωση ή η προσπέλαση με γέφυρα στο κτίριο πρέπει να έχει τόσο πλάτος ώστε να εξυπηρετείται η κίνηση πεζών και η πιθανή είσοδος - έξοδος οχημάτων σε αυτό. Οι ανωτέρω διαμορφώσεις δεν πρέπει να προκαλούν σημαντική αλλοίωση του φυσικού εδάφους.
παράγραφος 3)γ
Η παράγραφος εφαρμόζεται ανεξάρτητα από τους περιορισμούς της παραγράφου α, δεδομένου ότι οι κατασκευές που περιγράφονται αποτελούν σημειακές παρεμβάσεις στη διαμόρφωση του περιβάλλοντος χώρου για τη λειτουργική εξυπηρέτηση του κτιρίου.
Οι εν λόγω κατασκευές δεν αποτελούν αφετηρία μέτρησης του πραγματοποιούμενου ύψους του κτιρίου, όπως π.χ. ράμπα αυτοκινήτων, cour anglaise, κ.λ.π.
παράγραφος 4
Όσες από τις κατασκευές του άρθρου 16 και του άρθρου 17 επιτρέπονται μέσα στις αποστάσεις Δ ή δ, επιτρέπονται και μέσα στις αποστάσεις που αφήνονται λόγω της εφαρμογής της παραγράφου 1)στ του άρθρου 14 του παρόντος νόμου.
παράγραφος 6)α
Στα δίκτυα για την εξυπηρέτηση του κτιρίου που επιτρέπονται κάτω από τους ακάλυπτους χώρους του οικοπέδου συμπεριλαμβάνονται και οι εγκαταστάσεις γεωθερμίας.
παράγραφος 6)β (σε συνδυασμό με την παράγραφο 8Α)
Δεν επιτρέπεται η επέκταση υπογείων στο προκήπιο (πρασιά).
παράγραφος 6)β
Οι επεκτάσεις υπογείων χώρων γίνονται αποκλειστικά με βοηθητικές χρήσεις που περιγράφονται στο άρθρο 11. Στην επέκταση υπογείων μπορούν να περιλαμβάνονται θέσεις στάθμευσης, αποθήκες κατοικίας, αποθήκες ειδικών χρήσεων, λεβητοστάσια και μηχανοστάσια, μηχανολογικές εγκαταστάσεις απαραίτητες για τη λειτουργία του ενεργειακού σχεδιασμού του κτιρίου, για τη διαχείριση και εξοικονόμηση νερού, ανανεώσιμες πηγές ενέργειας, Συμπαραγωγή Ηλεκτρισμού και Θερμότητας Υψηλής Απόδοσης, υδατοδεξαμενές ή δεξαμενές συλλογής λυμάτων ή πισίνας. Τυχόν κύριες χρήσεις που χωροθετούνται σε υπόγειο χώρο του κτιρίου εμπίπτουν στο περίγραμμα του, αποτελούν λειτουργικό προσάρτημα του και δεν μπορούν να βρίσκονται στην εκτός περιγράμματος του κτιρίου επέκταση.
Επισημαίνεται η υποχρέωση για φύτευση με ελάχιστο πάχος εδάφους 40 cm πάνω από το χώρο της επέκτασης του υπογείου.
παράγραφος 7)στ
Η επιλογή της θέσης της δεξαμενής αερίου καυσίμου γίνεται υπέργεια ή υπόγεια σύμφωνα με τους ισχύοντες ειδικούς κανονισμούς.
παράγραφος 7)ι)β
Το σύνολο της διάταξης αφορά σε πρατήρια καυσίμων.
παράγραφος 8Α
Η παρούσα παράγραφος ισχύει με την επιφύλαξη της παραγράφου 2 του άρθρου 22 του Κτιριοδομικού Κανονισμού (απόφαση 3046/1989 (ΦΕΚ 59/Δ/1989)) για τα οικόπεδα με πρόσωπο στο βασικό οδικό δίκτυο.
παράγραφος 8Α)ζ
Επιτρέπεται η κατασκευή κλειστού χώρου στάθμευσης σε οικόπεδα με κλίση άνω του 20% στην πρασιά, αρκεί η στέγαση της πλάκας οροφής να γίνεται με φυτεμένη επιφάνεια. Η φυτεμένη επιφάνεια δεν έχει περιορισμό ελαχίστου πάχους εδάφους. Σε περίπτωση όμως που το πάχος εδάφους είναι μικρότερο των 40 cm τότε η φυτεμένη επιφάνεια δεν συμμετέχει στον υπολογισμό της απαιτούμενης φύτευσης. Οι συγκεκριμένες διαμορφώσεις δεν μπορούν να αναπτύσσονται σε όλο το πρόσωπο του οικοπέδου και καταλαμβάνουν μέγιστο πλάτος που αντιστοιχεί σε χώρο στάθμευσης το πολύ δύο αυτοκινήτων.
Άρθρο 18: Φυτεμένα δώματα
Στον παρόν άρθρο καθορίζονται οι όροι και προϋποθέσεις κατασκευής φυτεμένων επιφανειών σε νέα και υφιστάμενα κτίρια.
Για την κατασκευή φυτεμένων επιφανειών στα δώματα, στις στέγες και στους υπαίθριους χώρους κτιρίων που υλοποιούνται σε νέα κτίρια με άδειες δόμησης, ακολουθούνται οι καθοριζόμενες διαδικασίες πληρότητας και ελέγχου του νόμου 4030/2011 Νέος τρόπος έκδοσης αδειών δόμησης, ελέγχου κατασκευών και λοιπές διατάξεις (ΦΕΚ 249/Α/2011), όπως ισχύει, με την πρόσθετη υποβολή Τεχνικής Έκθεσης Κατασκευής Φυτεμένης Επιφάνειας δώματος ή στέγης ή υπαίθριου χώρου, το περιεχόμενο της οποίας καθορίζεται στο παράρτημα που συνοδεύει την υπ' αριθμόν 911/2012 υπουργική απόφαση Όροι, προϋποθέσεις και διαδικασία κατασκευής φυτεμένων επιφανειών σε δώματα, στέγες και υπαίθριους χώρους κτιρίων. (ΦΕΚ 14/Β/2012).
Για τα υφιστάμενα κτίρια, δεν απαιτείται άδεια δόμησης ή έγκριση εργασιών δόμησης μικρής κλίμακας, αλλά ακολουθείται η διαδικασία της προ 48 ωρών έγγραφης ενημέρωσης της παραγράφου 3 του άρθρου 4 του παρόντος νόμου. Η ανωτέρω ενημέρωση θα συνοδεύεται από φάκελο δικαιολογητικών, το περιεχόμενο του οποίου καθορίζεται στο άρθρο 2 παράγραφος 2 της υπ' αριθμόν 911/2012 Υπουργικής Απόφασης.
Άρθρο 19: Κατασκευές πάνω από το κτίριο
παράγραφος 2)α (σε συνδυασμό με παράγραφο 2)γ & άρθρο 35)
Από τον συνδυασμό των παραπάνω διατάξεων προκύπτουν τα εξής:
α) Εάν το δώμα του κτιρίου δεν είναι φυτεμένο κατά το άρθρο 18 του νόμου εξακολουθεί να ισχύει η διάταξη περί μη προσμέτρησης στην δόμηση της απόληξης κλιμακοστασίου και φρεατίου ανελκυστήρα μέγιστου ύψους έως και 2.40 m από την τελικά διαμορφωμένη επιφάνεια του δώματος του κτιρίου. β) Σε περίπτωση δημιουργίας φυτεμένου δώματος τότε είναι δυνατή η κατασκευή χώρου κύριας χρήσης σε αυτό σύμφωνα με τις προδιαγραφές της παραγράφου 2)α η δε απόληξη κλιμακοστασίου μπορεί να ακολουθήσει τα προβλεπόμενα στην παράγραφο 2)γ, εφόσον κατασκευάζεται στάση ανελκυστήρα, με μέγιστο εξωτερικό ύψος 3,80 m από την τελική επιφάνεια του δώματος (συμπεριλαμβανομένου και του πάχους της φύτευσης).
παράγραφος 2)δ (σε συνδυασμό με το άρθρο 2 παράγραφος 5)
Όταν τα στηθαία και τα κιγκλιδώματα ασφαλείας τοποθετούνται στην άκρη της οριζόντιας προεξοχής του δαπέδου του δώματος τότε η επιφάνεια της οριζόντιας προεξοχής θεωρείται ανοικτός εξώστης και προσμετράται στο σύνολο των επιτρεπομένων εξωστών.
παράγραφος 2)στ
Η εγκατάσταση των κατασκευών της παρούσας διάταξης επιτρέπεται με την προϋπόθεση τήρησης των διατάξεων περί ιδεατού στερεού.
παράγραφος 3
Η τοποθέτηση αλεξικέραυνου, κεντρικής κεραίας τηλεόρασης, ραδιοφώνου, κινητής τηλεφωνίας επιτρέπονται πάνω από το μέγιστο ύψος της περιοχής χωρίς έλεγχο του ιδεατού στερεού.
Άρθρο 20: Κατασκευές σε δημόσιους χώρους
παράγραφος 1 & παράγραφος 2
Μέχρι την έκδοση των Υπουργικών Αποφάσεων που προβλέπονται, συνεχίζει να εφαρμόζεται η διαδικασία που ίσχυε προ της ισχύος του νόμου 4067/2012 και όλες οι διατάξεις περί κατασκευών σε δημόσιους κοινόχρηστους χώρους της υπ' αριθμόν 52716/2001 υπουργικής απόφασης Κατασκευές και εγκαταστάσεις σε κοινόχρηστους χώρους του οικισμού για τις οποίες δεν απαιτείται άδεια δόμησης (ΦΕΚ 1663/Β/2001) καθώς και η εγκύκλιος 12/56990/2002.
Οι κατασκευές αυτές υλοποιούνται κατόπιν έγκρισης του Συμβουλίου Αρχιτεκτονικής.
παράγραφος 5
Η ζεύξη κτιρίων μεταξύ των οποίων μεσολαβεί δημόσιος κοινόχρηστος χώρος, υπέργεια ή υπογείως, εγκρίνεται από τον αρμόδιο για τον έλεγχο και τη διαχείριση του κοινοχρήστου χώρου φορέα, μετά την υποβολή μελέτης η οποία τεκμηριώνει επαρκώς την αναγκαιότητα της ζεύξης. Η υπέργεια ζεύξη κτιρίων εγκρίνεται από το Συμβούλιο Αρχιτεκτονικής, ενώ για την υπόγεια ζεύξη δεν απαιτείται σχετική έγκριση.
Άρθρο 21: Προσωρινές κατασκευές
Η εφαρμογή του παρόντος άρθρου θα είναι δυνατή μετά την έκδοση της Υπουργικής Απόφασης της παραγράφου 2)γ.
Άρθρο 22: Παρόδια στοά
Στο άρθρο ρυθμίζονται θέματα για τις παρόδιες στοές, όπως αυτές προβλέπονται στο ρυμοτομικό σχέδιο της περιοχής.
παράγραφος 2)ε
Για τον υπολογισμό της ελάχιστης υποχρεωτικής επιφάνειας φύτευσης κατ' εφαρμογή του άρθρου 17 παράγραφος 2)α, υπολογίζεται κατ' αρχήν η επιφάνεια υποχρεωτικής φύτευσης επί του υποχρεωτικά ακαλύπτου χώρου του οικοπέδου. Μετά την αφαίρεση του 30 % της επιφάνειας της παρόδιας στοάς, προκύπτει η τελικά η τελική υποχρεωτική επιφάνεια για φύτευση.
Άρθρο 23: Υφιστάμενα κτίρια
παράγραφος 1)γ
Διακρίνονται δύο περιπτώσεις:
α) ως νομίμως υφιστάμενο σε εντός σχεδίου περιοχή, θεωρείται το κτίριο που προϋπάρχει του διατάγματος ένταξης της περιοχής στο σχέδιο και με την προϋπόθεση ότι τούτο έχει κατασκευαστεί πριν τη δημοσίευση του νομοθετικού διατάγματος της 16-08-1923.
β) ως νομίμως υφιστάμενο σε εκτός σχεδίου περιοχή, θεωρείται το κτίριο που προϋπάρχει του διατάγματος της πιθανής ένταξης της περιοχής στο σχέδιο και με την προϋπόθεση ότι τούτο έχει κατασκευαστεί πριν τη δημοσίευση του νομοθετικού διατάγματος της 23-10-1928.
παράγραφος 2)γ
Κατά τη μελέτη προσθήκης σε υφιστάμενο κτίριο, τηρούνται οι ειδικοί όροι δόμησης και οι διατάξεις που ορίζονται με τον παρόντα νόμο, έστω και αν αυτοί δεν ίσχυαν κατά την ανέγερση του υφιστάμενου κτιρίου, με εξαίρεση τις διατάξεις του αφορούν σε άτομα με αναπηρία ή εμποδιζόμενα άτομα. Για την εξυπηρέτηση των υπόψη ατόμων έχουν εφαρμογή οι διατάξεις του άρθρου 26 και 27 παράγραφος 2 του νόμου. Αναλόγως του είδους της προσθήκης πάντως, δέον να εξαντλείται η δυνατότητα εφαρμογής των διατάξεων περί εξυπηρέτησης εμποδιζόμενων ατόμων γενικότερα, όπως π.χ. υλοποίηση κατάλληλης πρόσβασης σε περίπτωση προσθήκης κατ' επέκταση.
παράγραφος 3)β
Όσον αφορά στις έννοιες νομίμως υφιστάμενο κτίριο και νόμιμο περίγραμμα υφιστάμενου κτιρίου, διευκρινίζονται τα εξής:
α) στις περιπτώσεις α, β, γ, ε, και στ της παραγράφου 1 του άρθρου 23, το νόμιμο περίγραμμα ταυτίζεται με το περίγραμμα του νομίμως υφιστάμενου κτιρίου β) στην περίπτωση δ της παραγράφου 1 του άρθρου 23, νόμιμο περίγραμμα του προϋφιστάμενου της 09-08-1955 κτιρίου είναι το τμήμα που δεν αντίκειται στο τυχόν ισχύον σχέδιο πόλεως και στις ισχύουσες πολεοδομικές διατάξεις ή σε εκείνες που ίσχυαν κατά το χρόνο κατασκευής του εφόσον είναι ευνοϊκότερες. Το ίδιο ισχύει και για τα εξαιρεθέντα από την κατεδάφιση κτίρια με τις διατάξεις του νόμου 1337/1983.
Η καθ' ύψος προσθήκη κατά τα ανωτέρω επιτρέπεται στο νόμιμο περίγραμμα του κτιρίου, έστω και αν αυτό παραβιάζει τις σημερινές ισχύουσες διατάξεις, εκτός του τμήματος του κτιρίου που βρίσκεται εντός προκηπίου.
Στο εκτός νομίμου περιγράμματος τμήμα του υφιστάμενου κτιρίου επιτρέπονται εργασίες για λόγους χρήσεως και υγιεινής.
Για τα ανωτέρω έχουν εφαρμογή και η υπ' αριθμόν 86845/1999 Απόφαση Ενίσχυση υφισταμένων κτιρίων (ΦΕΚ 2036/Β/1999) καθώς και η εγκύκλιος 40/1997 (αριθμός πρωτοκόλλου 57621/24-09-1997) του Υπουργείου Περιβάλλοντος, Χωροταξίας και Δημοσίων Έργων Προσθήκη καθ' ύψος σε υφιστάμενα κτίρια σύμφωνα με το άρθρο 23 του Γενικού Οικοδομικού Κανονισμού 1985.
παράγραφος 5 (σε συνδυασμό με τις υπ' αριθμούς 13448/2012 και 13451/2012 υπουργικές αποφάσεις (ΦΕΚ 116/ΑΑΠ/2012)
Για τη λειτουργική συνένωση χώρων του ιδίου ή ομόρων κτιρίων διακρίνονται οι κάτωθι περιπτώσεις:
Α) Συνένωση αυτοτελών ιδιοκτησιών εντός του ιδίου κτιρίου:
Αναλόγως του είδους των εργασιών και της χρήσης του προκύπτοντος χώρου, απαιτείται η εφαρμογή μιας εκ των τριών περιπτώσεων αδειοδότησης / ενημέρωσης του άρθρου 4 του νόμου. Στην περίπτωση εφαρμογής της διαδικασίας έγγραφης ενημέρωσης, πέραν των αναφερομένων στοιχείων στην παρούσα οδηγία εφαρμογής του άρθρου 4 παράγραφος 3, υποβάλλεται και τεχνική έκθεση αρμοδίου μηχανικού με την οποία τεκμηριώνεται η στατική επάρκεια του κτίσματος μετά τις προβλεπόμενες διαρρυθμίσεις / διασκευές.
Β) Συνένωση και λειτουργική ενοποίηση κτισμάτων όμορων οικοπέδων:
Για την εφαρμογή της παρούσας διάταξης, η οποία προϋποθέτει συναίνεση όλων των ιδιοκτητών των όμορων οικοπέδων, ακολουθούνται τα προβλεπόμενα στις υπ' αριθμούς 13448/2012 και 13451/2012 υπουργικές αποφάσεις (ΦΕΚ 116/ΑΑΠ/2012).
Γ) Λειτουργική συνένωση χώρων όμορων κτιρίων:
Εφαρμόζονται τα προβλεπόμενα στις υπ' αριθμούς 13448/2012 και 13451/2012 υπουργικές αποφάσεις (ΦΕΚ 116/ΑΑΠ/2012).
Άρθρο 24: Χαμηλά κτίρια
(σε συνδυασμό με το άρθρο 11 παράγραφος 3)
Σε περίπτωση οριζόντιας ή / και κάθετης συνιδιοκτησίας, η εφαρμογή της ευεργετικής διάταξης για τα χαμηλά κτίρια δεσμεύει όλο το οικόπεδο για κατασκευή αποκλειστικά χαμηλών κτιρίων. Ως εκ τούτου, για την έκδοση Άδειας Δόμησης απαιτείται συναίνεση των συνιδιοκτητών.
Άρθρο 26: Ειδικές ρυθμίσεις για την εξυπηρέτηση ατόμων με αναπηρία ή εμποδιζόμενων ατόμων
παράγραφος 2
Κατά την εφαρμογή του παρόντος άρθρου θα πρέπει να λαμβάνεται υπ' όψη η υπ' αριθμόν 29467/2012 Εγκύκλιος 9 του Γραφείου Μελετών Ατόμων με Αναπηρία / Γραφείου Περιβάλλοντος, Ενέργειας και Κλιματικής Αλλαγής (ανάρτηση στον ιστότοπο Υπουργείου Περιβάλλοντος, Ενέργειας και Κλιματικής Αλλαγής την 22-06-2012).
Άρθρο 27: Ειδικές διατάξεις
παράγραφος 2
Μέχρι την έκδοση της προβλεπόμενης κατ' εξουσιοδότηση της παραγράφου 2 του άρθρου 4 Υπουργικής Απόφασης σχετικά με τον καθορισμό των ειδικών δικαιολογητικών για τη διαδικασία έκδοσης της Έγκρισης Εργασιών Μικρής Κλίμακας, για την εφαρμογή της παρούσας παραγράφου εξακολουθούν να ισχύουν οι προϋποθέσεις της παραγράφου 5 του άρθρου 21 του νόμου 1577/1985 καθώς δεν έρχονται σε αντίθεση με αυτήν, ανεξαρτήτως της ισχύος της διαδικασίας ενημέρωσης της Ταυτότητας Κτιρίου.
Άρθρο 28: Εξουσιοδοτικές διατάξεις
παράγραφος 2
Διευκρινίζεται ότι για την έκδοση της προβλεπόμενης απόφασης του Υπουργού Περιβάλλοντος, Ενέργειας και Κλιματικής Αλλαγής μετά από γνώμη του Κεντρικού Συμβουλίου Πολεοδομικών Θεμάτων και Αμφισβητήσεων, θα πρέπει να έχουν υπάρξει διαφορετικές ερμηνείες των Υπηρεσιών που είναι αρμόδιες για την εφαρμογή της Πολεοδομικής Νομοθεσίας (ήτοι: Υπηρεσίες Δόμησης, οικεία Διεύθυνση Περιβάλλοντος και Χωρικού Σχεδιασμού της Αποκεντρωμένης Διοίκησης και αρμόδια Διεύθυνση του Υπουργείου Περιβάλλοντος, Ενέργειας και Κλιματικής Αλλαγής). Την κίνηση της σχετικής διαδικασίας μπορεί να ζητήσει η περιφερειακή υπηρεσία, εφ' όσον η άποψή της διαφοροποιείται από αυτήν της αρμόδιας Διεύθυνσης του Υπουργείου
Άρθρο 35: Καταργούμενες διατάξεις
Διευκρινίζεται ότι διατάξεις της πολεοδομικής νομοθεσίας οι οποίες δεν είναι αντίθετες με τις ρυθμίσεις του παρόντος νόμου εξακολουθούν να ισχύουν. Ενδεικτικά αναφέρονται το άρθρο 27 παράγραφος 1 του νόμου 1577/1985 και ο Κτιριοδομικός Κανονισμός (ΦΕΚ 59/Δ/1989) όπως ισχύει, πλην των συγκεκριμένων διατάξεων που τροποποιούνται ρητώς από τον παρόντα νόμο (π.χ. το ελεύθερο ύψος του κύριου χώρου).
Ο Αναπληρωτής Υπουργός Περιβάλλοντος, Ενέργειας και Κλιματικής Αλλαγής